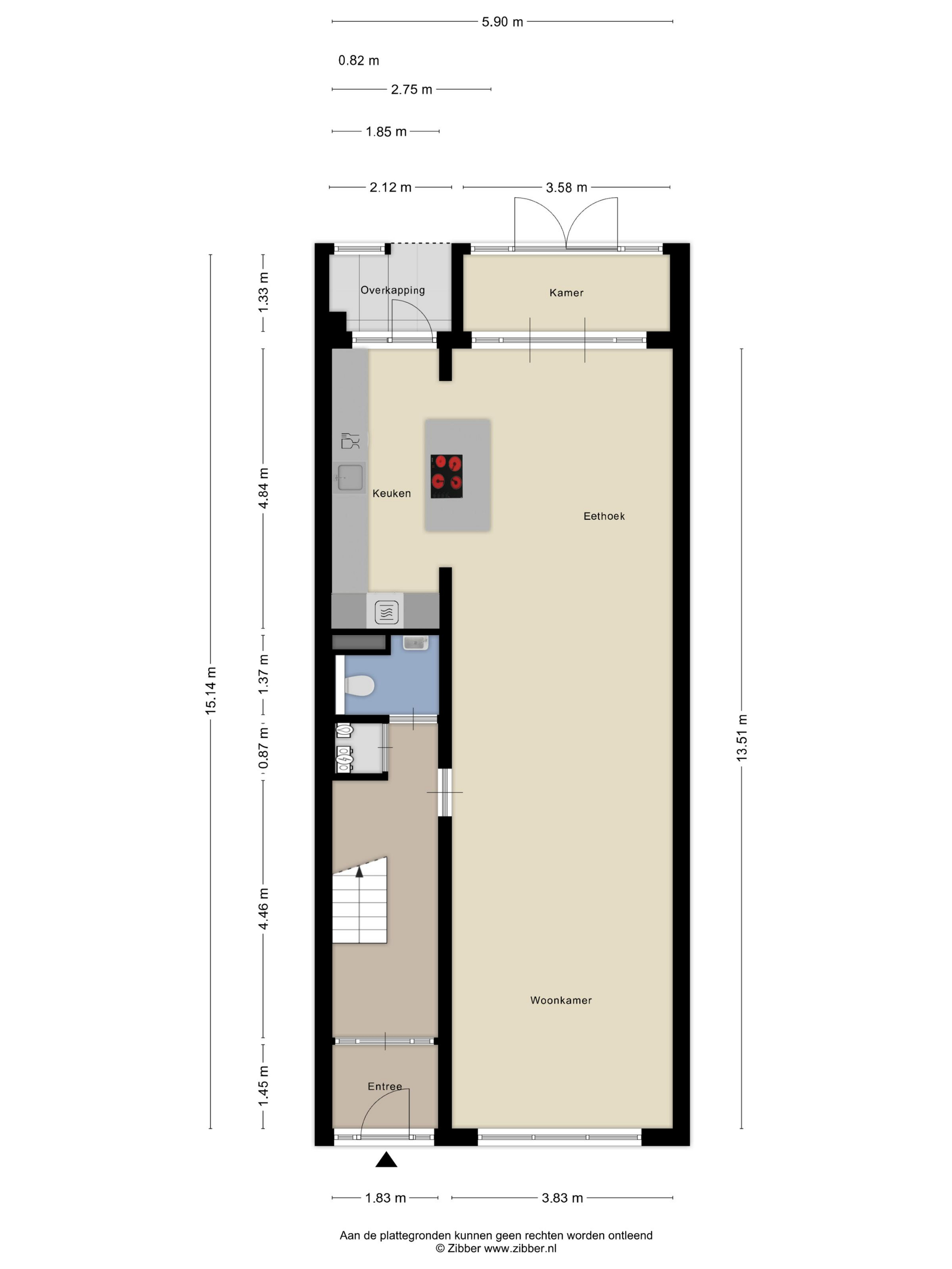
Das Stadthaus Rotterdam Straatweg bietet 232 m² sorgfältig gestalteten Wohnraum an einer der elegantesten Alleen von Hillegersberg. Hinter einer klassischen Fassade entfaltet sich ein Ambiente, das durch bewahrte Details und zeitgemässe Ausstattungen geprägt ist – ein kontemplativer Rückzugsort mit sechs Schlafzimmern, zwei Bädern und einem seltenen Raumgefühl. Das Herzstück des Hauses ist die modernisierte offene Küche mit großzügiger Kochinsel und hochwertigen Geräten, die nahtlos in ein helles Gartenzimmer übergeht; französische Türen führen in den außergewöhnlich tiefen Garten. Dieser Außenbereich, Teil eines 413 m² großen Grundstücks in Volleigentum, bietet Ruhe, Privatsphäre und viel Sonne, ergänzt durch ein 18 m² großes Nebengebäude und die gewachsene Gartenanlage.
Entdecken Sie Rotterdam mit Baerz, Ihrem vertrauenswürdigen persönlichen Immobilienfinder und Berater
Die Navigation auf dem dynamischen Rotterdamer Immobilienmarkt erfordert erfahrene Berater, die lokale Expertise mit internationalem Kundenservice verbinden. Diskreter Zugang zu Off-Market-Angeboten, gezielte Verhandlungsstrategien und vertieftes regulatorisches Wissen ermöglichen es anspruchsvollen Käufern und Verkäufern, kluge Entscheidungen zu treffen. Diese Kompetenz optimiert Renditechancen und sichert Interessen über alle Phasen hinweg.
Häufige Fallstricke vermeiden
Internationale Käufer verlieren oft wertvolle Zeit, weil sie sich durch doppelte, veraltete oder irreführende Online-Angebote kämpfen müssen – besonders da fast 30% aller Luxusimmobilien überhaupt nicht auf dem Markt erscheinen.
Makler des Verkäufers vertreten die Interessen des Verkäufers, nicht Ihre, und schon eine einfache Anfrage kann dazu führen, dass eine Agentur Sie ohne Ihre Zustimmung als deren „Kunden“ registriert.
Mit Baerz Property Finders & Advisors umgehen Sie all diese Fallstricke vollständig.
Wir handeln ausschließlich in Ihrem Interesse, bieten unabhängige Vertretung, transparente Beratung und Zugang zu jedem verfügbaren Objekt – einschließlich privater und off-market Angebote, die andere nie zu sehen bekommen.
Neugierig, wie Sie Ihren eigenen Personal Property Advisor sichern können? Kontaktieren Sie uns, um zu erfahren, wie wir Ihre Interessen vertreten und Ihnen den gesamten Markt öffnen können.