Die Villa Sassenheim lädt zu Großzügigkeit und Privatsphäre auf einem 1.130 m² großen Grundstück in einem renommierten Wohnviertel der Niederlande ein. Diese Villa verbindet das gewachsene Fundament von 1951 mit 199 m² Wohnfläche und entfaltet eine harmonische Komposition aus klassischen und zeitgenössischen Elementen. Schon die Zufahrt begrüßt mit großzügigen Parkmöglichkeiten und führt in lichtdurchflutete Innenräume, getragen von einem L-förmigen Wohnbereich, originalen Bleiglasfenstern und Parkettböden. Helligkeit durchströmt den neueren Wintergarten und ein zusätzliches Wohnzimmer, beide mit beheizten Fliesenböden, was das Wohngefühl erweitert und flexible Nutzungsmöglichkeiten für Entspannung oder Unterhaltung eröffnet.
Im Obergeschoss befinden sich zwei jeweils ca. 15 m² große Schlafzimmer zur ruhigen Gartenseite. Das Hauptschlafzimmer verfügt über ein eigenes Bad mit Dusche, während das zweite Schlafzimmer Zugang zu einem nach Südwesten ausgerichteten Balkon bietet. Ein weiteres voll ausgestattetes Badezimmer mit Badewanne, Dusche und zwei Eingängen erhöht den Komfort zusätzlich. Das Dachgeschoss mit einer Firsthöhe von 2,3 Metern bietet Potenzial für individuelle Anpassungen.
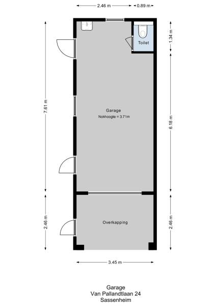
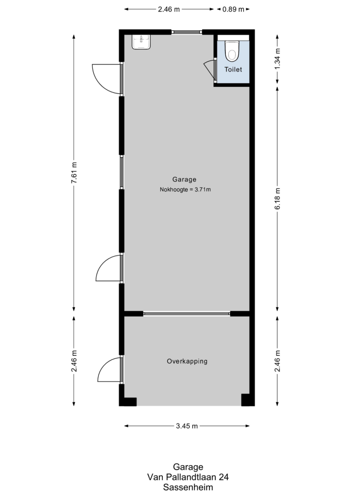
Das nahezu vollflächige Untergeschoss, von zwei Seiten zugänglich, dient derzeit als Waschküche und Lagerraum, bietet jedoch spielend Raum für Fitness, Heimkino oder Wellness-Bereich. Im Außenbereich sorgen die gestaltete Gartenanlage, zwei Zufahrten sowie eine Garage mit 26 m² und eine weitere mit 16 m² für großzügige Park- und Nutzungsmöglichkeiten. Die Villa Sassenheim ist ideal angebunden an das urbane Zentrum von Sassenheim – Geschäfte, Schulen, Gastronomie – sowie an die wichtigsten niederländischen Verkehrsadern wie die A44 und N206, mit schnellen Verbindungen nach Leiden, Amsterdam, Haarlem und Den Haag sowie zuverlässigen öffentlichen Verkehrsmitteln. Diese zum Verkauf stehende Villa in Sassenheim vereint gewachsenen Charme mit anspruchsvollen Perspektiven für ein stilvolles Leben.
Entdecken Sie Sassenheim mit Baerz, Ihrem vertrauenswürdigen persönlichen Immobilienfinder und Berater
Der gehobene Markt verlangt Diskretion und exzellente lokale Kenntnisse. Exklusive Off-Market-Angebote und vertrauliche Verhandlungen sind verbreitet. Vertrauenswürdige Berater verschaffen privilegierten Zugang, vertreten Käuferinteressen bei Strukturierung und Preisverhandlungen und vermitteln regulatorische Details und Anlagerisiken. Ihr Rat ist unerlässlich, um in diesem Markt die besten Chancen zu nutzen.
Häufige Fallstricke vermeiden
Internationale Käufer verlieren oft wertvolle Zeit, weil sie sich durch doppelte, veraltete oder irreführende Online-Angebote kämpfen müssen – besonders da fast 30% aller Luxusimmobilien überhaupt nicht auf dem Markt erscheinen.
Makler des Verkäufers vertreten die Interessen des Verkäufers, nicht Ihre, und schon eine einfache Anfrage kann dazu führen, dass eine Agentur Sie ohne Ihre Zustimmung als deren „Kunden“ registriert.
Mit Baerz Property Finders & Advisors umgehen Sie all diese Fallstricke vollständig.
Wir handeln ausschließlich in Ihrem Interesse, bieten unabhängige Vertretung, transparente Beratung und Zugang zu jedem verfügbaren Objekt – einschließlich privater und off-market Angebote, die andere nie zu sehen bekommen.
Neugierig, wie Sie Ihren eigenen Personal Property Advisor sichern können? Kontaktieren Sie uns, um zu erfahren, wie wir Ihre Interessen vertreten und Ihnen den gesamten Markt öffnen können.