Ons kantoor is lid van Baerz & Co Luxury Homes; een internationaal platform dat exclusieve woningmakelaars met elkaar verbindt. Neem contact op met ons secretariaat voor meer informatie over het landelijke aanbod, waarvan u hieronder een selectie kunt bekijken.

ZOETERMEER
Bellefleurhof 12 0 ong - 2728 KH
Niederlande

Xandra Bek profile image
Xandra Bek
Register makelaar - taxateur
€1,345,000 k.k.
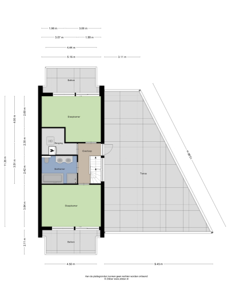
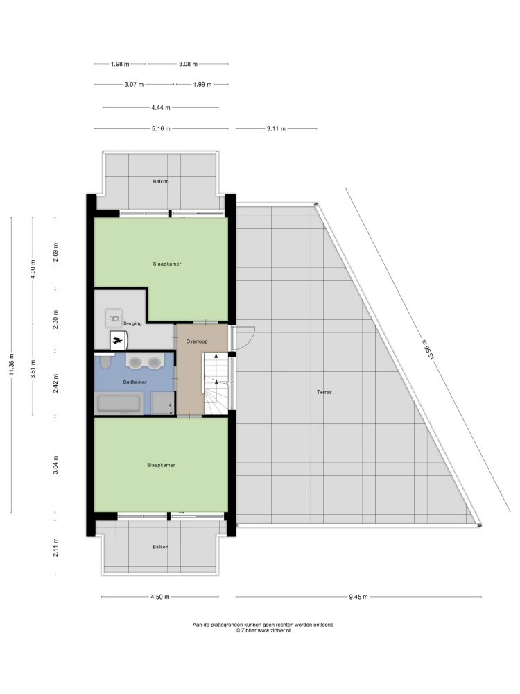
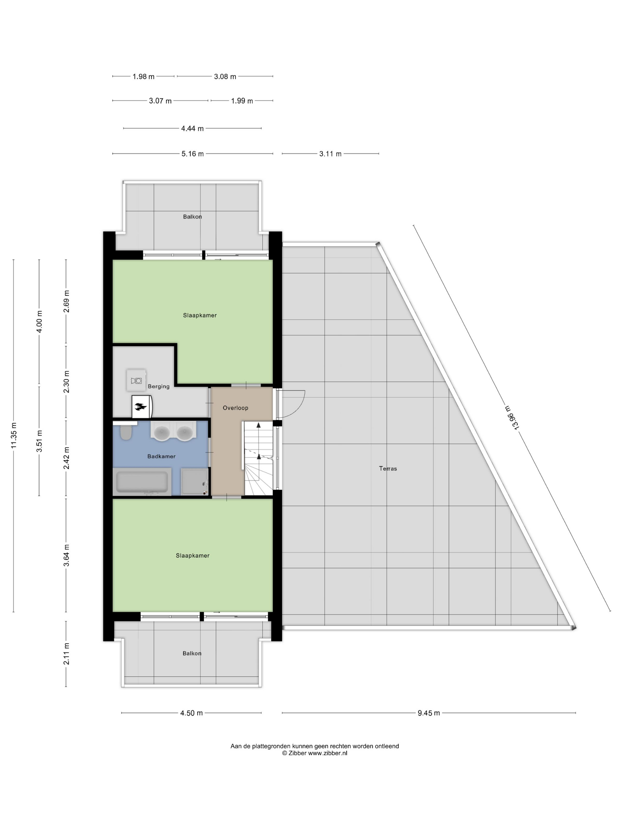
Wohnfläche
382m2
Grundstücksgröße
N/A
Schlafzimmer
9

Beschreibung

Dieses halb freistehende Stadthaus in Zoetermeer bietet eine seltene Gelegenheit: Zwei vollkommen unabhängige Wohneinheiten unter einem Dach, maßgeschneidert für das moderne Mehrgenerationenwohnen oder unkompliziertes Zusammenleben. Mit 382 m² Wohnfläche auf vier Ebenen verbindet das Haus Privatsphäre mit der Möglichkeit gemeinsamer Momente durch zwei Wohnzimmer, zwei Küchen und neun Schlafzimmer, ergänzt von drei modernen Badezimmern.

Großflächige Fenster durchfluten die großzügigen Innenräume mit Tageslicht und setzen die klaren, modernen Linien sowie pflegeleichten Aluminiumrahmen gekonnt in Szene. Jeder Wohnbereich ist mit Ausblick ins Grüne ausgerichtet und verleiht dem ruhigen Wohnviertel mit alten Baumbeständen und breiten, friedlichen Alleen eine besondere Gelassenheit. Die auf allen Etagen verteilten Schlafzimmer sorgen für Flexibilität – ideal für große Familien, Gäste oder als private Arbeitsräume.

Insgesamt stehen 168 m² Außenfläche zur Verfügung, bestehend aus Vorgarten, Rückgarten, drei Balkonen und drei Dachterrassen, die sowohl Sonnenstunden als auch Privatsphäre garantieren. Das Haus ist mit HR++-Verglasung, umfassender Dämmung, zwölf Solarpaneelen und der Energieeffizienzklasse A ausgestattet, ein Beleg für Qualität und Nachhaltigkeit. Praktische Extras umfassen ein Carport, privaten Stellplatz mit Ladestation sowie Optionen für Erweiterungen. Das Viertel Noordhove teil II besticht durch Ruhe, direkte Anbindung an Grundschulen, Sportanlagen, Naturschutzgebiete und eine ausgezeichnete Verbindung ins Zentrum von Zoetermeer und nach Den Haag – ein zurückhaltendes, vielseitiges Familiendomizil.

Entdecken Sie Zoetermeer mit Baerz, Ihrem vertrauenswürdigen persönlichen Immobilienfinder & Berater

Diskretion und fundierte Marktkenntnis sind entscheidend für den Luxussektor der Stadt. Persönliche Berater ermöglichen Zugang zu Off-Market-Objekten und professionellen Verhandlungen, schaffen Mehrwert bei hochpreisigen Käufen und vertraulichen Verkäufen – stets mit Fokus auf seltene Chancen und optimale Ergebnisse.

Vermeiden Sie häufige Fallstricke

Internationale Käufer verschwenden oft wertvolle Zeit mit doppelten, veralteten oder irreführenden Online-Angeboten, insbesondere da fast 30% der Luxusimmobilien nie auf dem öffentlichen Markt erscheinen. Verkäufermakler vertreten die Interessen des Verkäufers, nicht die des Käufers. Selbst die Anfrage nach Informationen zu einer Immobilie kann dazu führen, dass ein Verkäufermakler Sie ohne Ihre Zustimmung als seinen „Kunden“ registriert.
Mit Baerz Property Finders & Advisors vermeiden Sie all diese Fallstricke vollständig. Wir arbeiten ausschließlich in Ihrem Auftrag, bieten unabhängige Vertretung, klare Beratung und Zugang zu allen verfügbaren Immobilien, einschließlich Off-Market-Möglichkeiten, die andere nie zu sehen bekommen.

Interessiert an einem Personal Property Advisor?

Wir zeigen Ihnen alle verfügbaren Häuser an einem Ort. Kontaktieren Sie uns gerne, um zu erfahren, wie wir Ihre Bedürfnisse erfüllen und Ihre Interessen exklusiv schützen können.

Merkmale

Solarmodule
Klimaanlage
Eigentumsübertragung
Verkaufspreis
€ 1.345.000 k.k.
Status
beschikbaar
Annahme
in overleg
Bau
Art des Hauses
Herenhuis
Gebäudetyp
halfvrijstaande woning
Bauzeitraum
2002
Energieeffizienzklasse
A
Dachtyp
plat dak
Schlafzimmer
9
Badezimmer
3
Oberflächen und Volumen
Wohnfläche
382 m2
Anderer Innenbereich
0 m2
Außenbereich am Gebäude angebaut
168 m2
Externer Stauraum
9 m2
Volumen in Kubikmetern
1262 m3
Einrichtungen
Airconditioning
Rookkanaal
Schuifpui
Frans balkon
Glasvezel kabel
Zonnepanelen
Aan park
In woonwijk
Vrij uitzicht
Baerz & Co Property Brochure

Broschüre

Videos

Grundrisse

Van Herk Makelaars Excellent

Oudehoofdplein 4
3011 TM Rotterdam

xbek@vanherk.nl
+31 102581855

www.vanherk.nl/excellent/

Information / Besichtigungsanfrage

Xandra Bek profile image
Xandra Bek
Register makelaar - taxateur

Kauf einer Luxusimmobilie in Zoetermeer

Zoetermeer repräsentiert eine moderne, offene Gemeinschaft für alle, die Wert auf Raffinesse, kulturelle Angebote und sehr gute Infrastruktur legen. Die Bewohner schätzen diskrete Serviceleistungen, hochwertige Immobilien und einen weltoffenen Lebensstil in einer ruhigen und zugleich pulsierenden Stadt.