Imposing, well-maintained, and spacious (ca. 289m2) three storey townhouse featuring an unobstructed view from the front plus a secluded sunny back garden with separate back entrance.
Situated in the heart of the prestigious Duinoord neighbourhood, a highly sought-after area nestled between the city centre and seaside offering easy access to (international) schools, public transport, major motorways, and two of The Hague’s most popular commercial hubs: the Frederik Hendriklaan and the Reinkenstraat.
This elegant home combines the best of both worlds: modern comforts (floor and roof insulation, solar panels, double glazing) as well as charming period details such as sliding and paneled doors, marble fireplace surrounds, and high decorative ceilings.
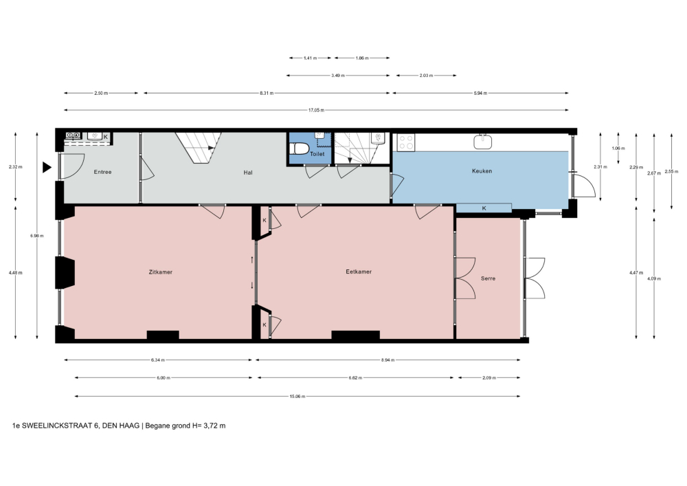
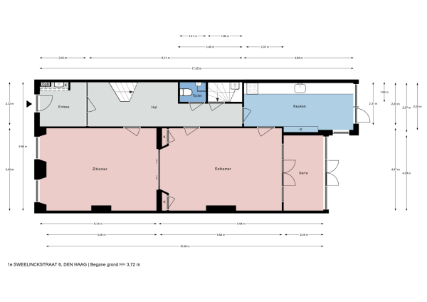
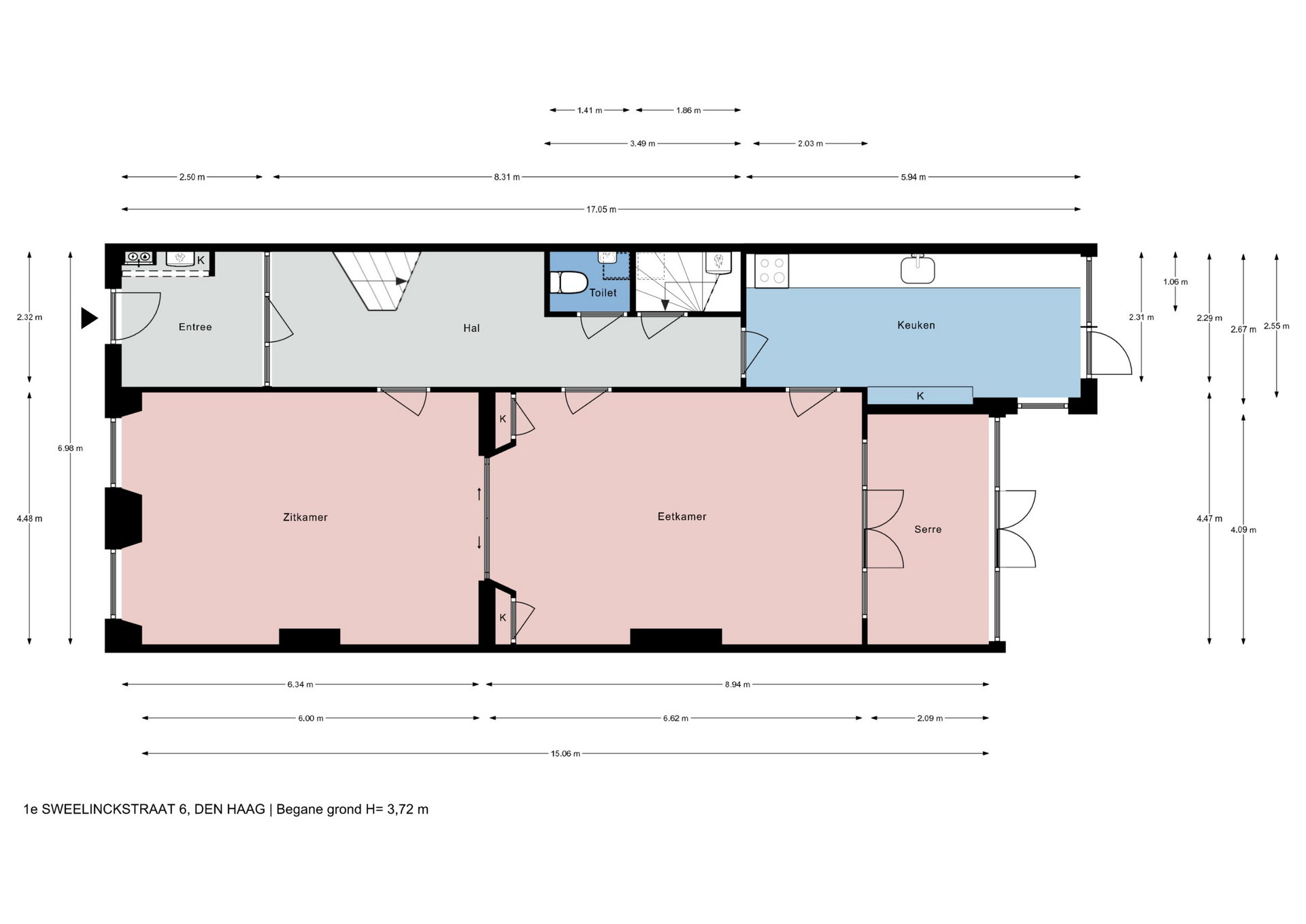
Ground floor (surface area ca. 111 m2, ceiling height ca. 3.72 meters)
The front door opens to a spacious vestibule with an anti-draught door to a wide hallway, both with marble flooring, and a modern guest lavatory. There are two generous reception rooms separated by sliding doors framed by built-in storage, each with high moulded plaster ceilings, beautiful parquet flooring, and marble mantels. The front room features a wood-burning fireplace; the one facing the back has double doors to a sun room and open access to a huge modern kitchen outfitted with integrated appliances as well as a stunning original built-in crockery cupboard. Both back rooms have doors to the large sunny garden with storage sheds and a back entrance. There is also a 14m2 standing height cellar under the kitchen.
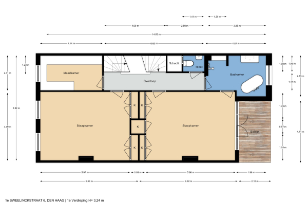
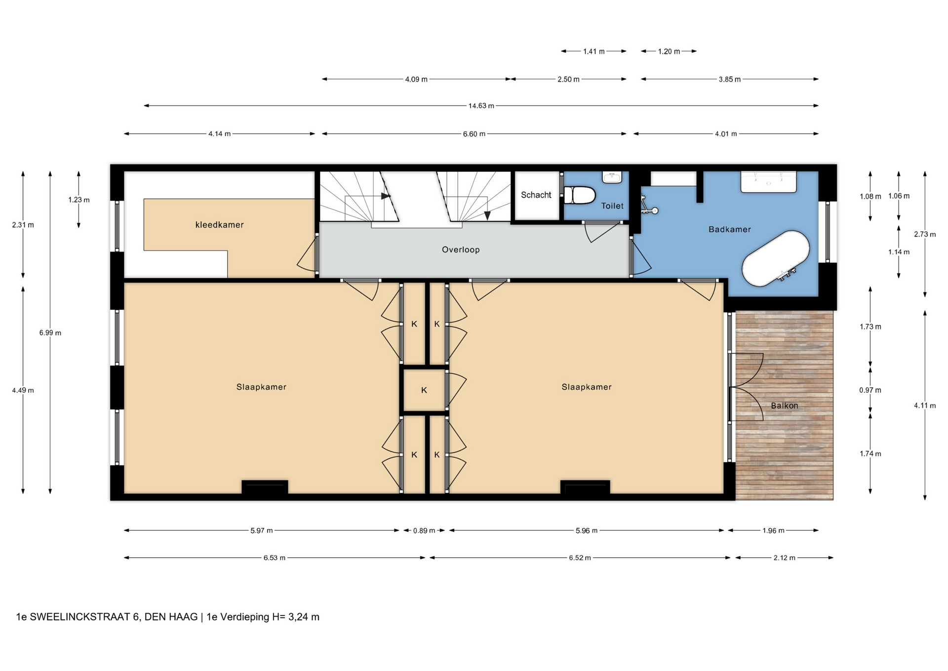
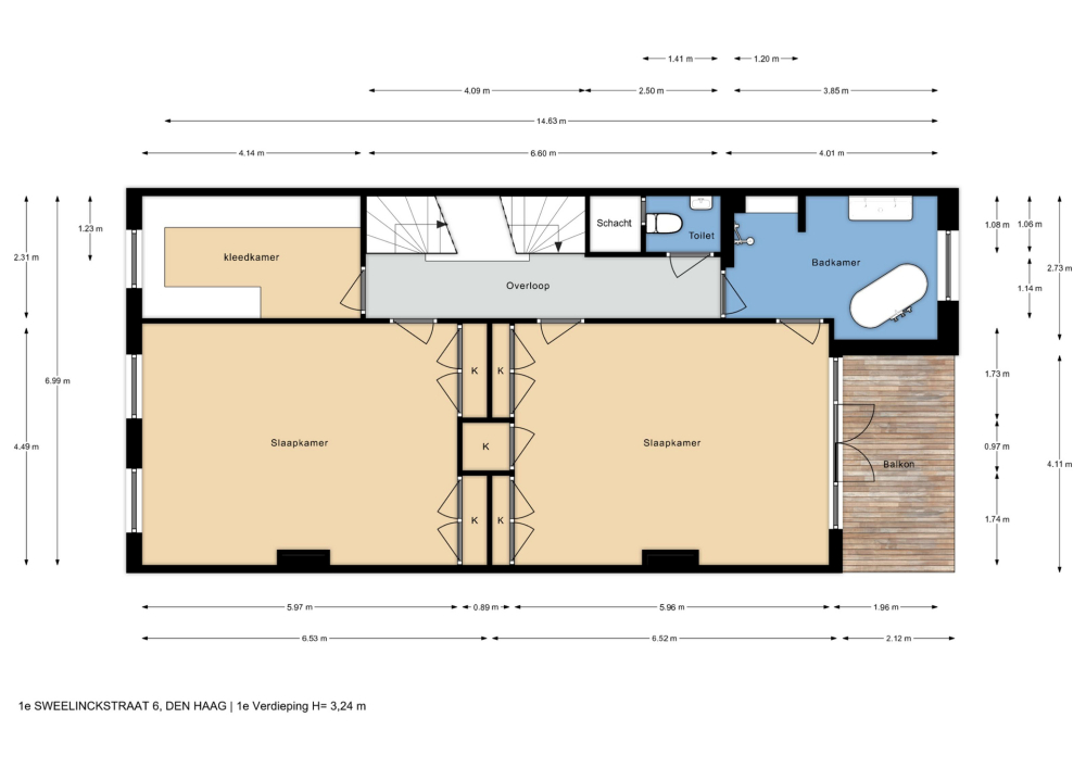
A beautiful staircase with under-stairs storage space ascends to the 1st floor (surface area ca. 90m2, ceiling height ca. 3.24 meters)
At the top of the stairs is a landing with a separate modern wc. There is a large front room with an unimpeded view and a back room with access to a balcony, both with high moulded ceilings, marble mantels, and fitted wardrobes. A third room, currently in use as a walk-in closet, could function as a study or extra bedroom. The complete modern bathroom, with bath, walk-in shower, double vanity, and heated floors is accessible from both the landing and the back bedroom.
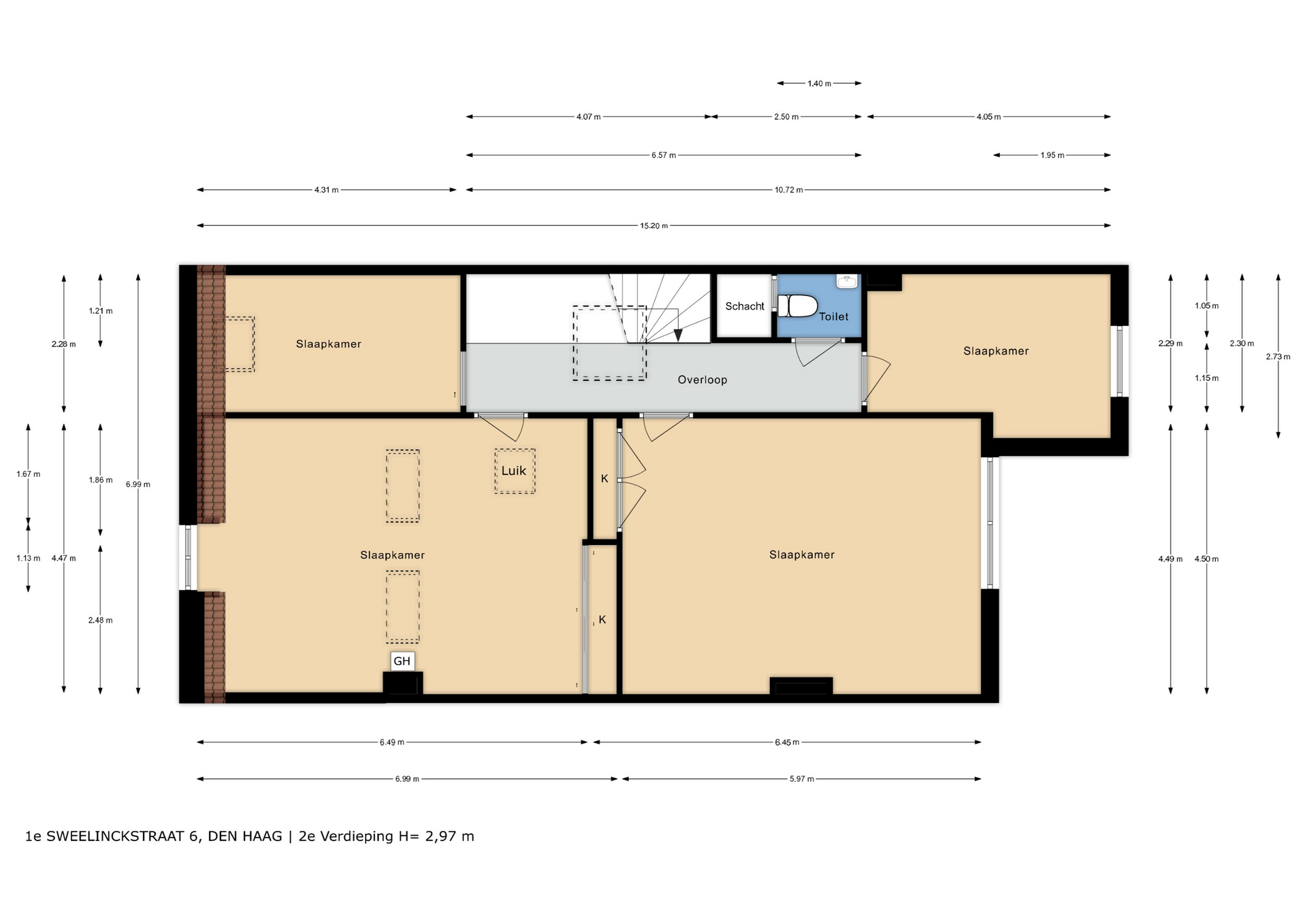
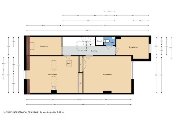
The 2nd floor (surface area ca. 88 m2, ceiling height 2.97 meters) has wooden flooring throughout and a landing that is bathed in sunlight from a large skylight, plus a separate wc. There is an especially bright, good-sized front room with a dormer and high ceiling, as well as a big back bedroom - both with built-in wardrobes. Two smaller rooms, of which one houses the laundry, offer the possibility of creating a second bathroom, see artist impresion (cost circa €16.000 - €18.000; quotation available). The back rooms have partially unobstructed views over the iconic Haganum building.
Facts, figures, and features:
- Freehold, plot size 219m2 with back entrance
- Built in 1892
- Interior space ca. 289m2 arranged over 3 levels
- Double glazing throughout most of the premises, floor and roof insulation
- 9 Solar panels
- Energy efficiency rating C
- Standing height cellar (ca. 1.81 meters)
- Beautiful original architectural details throughout the whole house
- Structural inspection and QuickScan asbestos reports available
- Older construction and materials disclaimers will be included in the purchase agreement
- Available in mutual consultation