Baerz & Co is een landelijk samenwerkingsverband van zorgvuldig geselecteerde boutique luxury makelaars. Samen vormen wij één netwerk, met één gedeeld aanbod. De woningen die u op onze website ziet, zijn afkomstig van alle aangesloten kantoren binnen Baerz & Co. Daardoor is niet ieder object rechtstreeks door ons kantoor in verkoop, maar door een gespecialiseerde collega binnen ons netwerk. Heeft u een woning gevonden die u aanspreekt en wilt u meer informatie? Dan brengen wij u graag persoonlijk in contact met de betreffende verkoopmakelaar, zodat u direct en zorgvuldig wordt begeleid.

AMSTERDAM
Herengracht 423 - 1017 BR
Netherlands

Lennart van Oosterhout profile image
Lennart van Oosterhout
Real Estate Agent
€3,400,000 k.k.
Living Area
313m2
Plot Size
354m2
Bedrooms
6

Description

Listed by Signature Listing

17th-century canal house full of character, light and timeless elegance.
Located on one of the most beautiful parts of the Herengracht — calm, stately and free of houseboats — lies this exceptional 17th-century canal house. A national monument that not only breathes history, but also warmth, light and a refined atmosphere that embraces you the moment you walk in. This is not a residence you simply view. This is a residence you feel. Divided over four living floors (excluding the basement), with six bedrooms, four bathrooms, a patio, an alleyway and a hidden roof terrace tucked between the historic roofs of the inner city. A home that offers space for life, tranquility, creativity, family, work and long evenings by the canal.

Tour
Lower level/ Basement
Currently used as a bed & breakfast, the lower ground floor offers a range of possibilities. The bright living room is perfect for relaxation, while the open kitchen invites casual cooking and dining. The bedroom, with an adjoining walk-in closet, provides privacy and comfort. Thanks to the smart layout and a ceiling height of 2.29 meters, this space could also be ideal as a home office, practice room, or independent living space for an au pair.

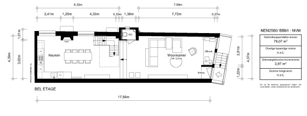
Bel-etage
You enter on the bel-etage, where the tall windows at the front frame the canal like a living painting. At the rear: a large kitchen with modern appliances, fireplace and precisely that atmosphere that invites long dinners and good conversations.

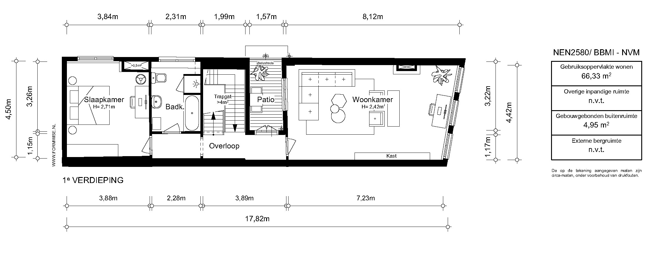
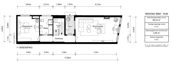
First floor
An architectural staircase brings you to the first floor. Here: a spacious bedroom with private bathroom (shower, bath, double sinks, toilet). At the front, an atmospheric second living room with canal views — or a full bedroom — a space that breathes, carries and inspires. From this floor you can also step onto the patio: a hidden peaceful spot in the middle of the city.

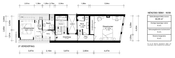
Second floor
Two spacious bedrooms, each with its own bathroom. Privacy. Comfort. Harmony. Ideal for family, guests or working from home.

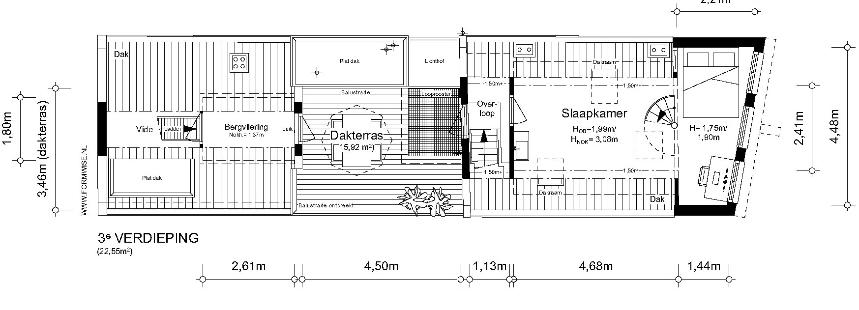
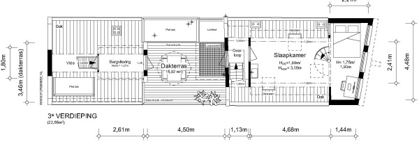
Third floor
A spacious bedroom at the front, a characterful mezzanine as an additional room, and then the highlight: the roof terrace. Intimate, sheltered, and overlooking the historic rooftops and the church — a rare luxury in the city centre.

Neighbourhood guide
Between the Wijde Heijsteeg and the Koningsplein lies a part of the canal that is cherished by Amsterdammers who seek tranquillity without leaving the city. With the ‘9 Straatjes’ literally around the corner — boutiques, galleries, delicatessens, cosy cafés — and cultural highlights such as the Stopera, the Concertgebouw, the P.C. Hooftstraat and even the Vondelpark within walking distance. It is a location where life feels like a privilege.

Advantages of the property
+ Freehold land;
+ Foundation completely renewed in 2005;
+ Very generous living area of 313 m²;
+ Very interesting building to develop and split into 2 or 3 high-end apartments;
+ Possibility to apply for an Airbnb permit (income approx. €6,000 per month);
+ Dual occupancy or working from home possible;
+ Alleyway (26 m²) with second entrance. Ideal for bicycles;
+ Lots of natural light thanks to tall windows;
+ The bel-etage is completely open;
+ Fantastic canal views;
+ Ceiling height in living room of 3.81 m;
+ Roof terrace (16 m²) next to the historic church;
+ Design staircase;
+ Fireplace;
+ 2 central heating boilers.

Sales conditions
+ The property is sold "as is where is";
+ Choice of notary by buyer, Ring Amsterdam model;
+ Age clause applies;
+ Completion in consultation.

If this canal house touches you as it has touched us, we would be delighted to guide you — with discretion, warmth and care — through every step of the process. Open house on Wednesday 17 December from 14:00–16:00.

For information or to schedule a viewing appointment:
Signature Listing: 020 260 0151.

Disclaimer
This information has been compiled by us with the utmost care. However, we accept no liability for any incompleteness, inaccuracies or otherwise, nor for the consequences thereof. All stated measurements and surfaces are indicative. The buyer has their own duty to investigate all matters that are important to them. With regard to this property, the estate agent represents the seller. We advise you to engage a professional (NVM) purchasing agent to guide you through the purchase process. If you have specific wishes regarding the property, we advise you to express these in good time to your purchasing agent and to (have them) conduct independent research. If you do not engage a professional representative, you consider yourself sufficiently knowledgeable by law to oversee all matters of importance. The NVM conditions apply.

Warm regards,
Team Signature Listing

Features

Transfer of ownership
Asking Price
€ 3.400.000 k.k.
Status
beschikbaar
Acceptance
in overleg
Construction
Kind of house
Grachtenpand
Building type
tussenwoning
Bedrooms
6
Bathrooms
4
Surface Areas And Volume
Living Area
313 m2
Other indoor space
3 m2
Exterior space attached to the buildinge
9 m2
Volume in cubic meters
699 m3
Plot Size
354 m2
Facilities
Aan water
In centrum
Vrij uitzicht
Aan vaarwater
Baerz & Co Property Brochure

Brochure

Videos

Floor Plans

Storimans en Partners

Ginnekenweg 161
4818 JD Breda

lvanoosterhout@storimansenpartners.nl
+31 76 522 60 90

www.storimansenpartners.nl

Information / Viewing request

Lennart van Oosterhout profile image
Lennart van Oosterhout
Real Estate Agent

Buying a Luxury Property in Amsterdam

Amsterdam offers a cosmopolitan lifestyle defined by heritage, connectivity, and discreet luxury. Residents benefit from a robust international community, curated services, and vibrant culture. The city’s enduring appeal lies in its blend of history, sophistication, and progressive spirit.