Baerz & Co is een landelijk samenwerkingsverband van zorgvuldig geselecteerde boutique luxury makelaars. Samen vormen wij één netwerk, met één gedeeld aanbod. De woningen die u op onze website ziet, zijn afkomstig van alle aangesloten kantoren binnen Baerz & Co. Daardoor is niet ieder object rechtstreeks door ons kantoor in verkoop, maar door een gespecialiseerde collega binnen ons netwerk. Heeft u een woning gevonden die u aanspreekt en wilt u meer informatie? Dan brengen wij u graag persoonlijk in contact met de betreffende verkoopmakelaar, zodat u direct en zorgvuldig wordt begeleid.

DELFT
Oude Delft 45 - 2611 BC
Netherlands

Lennart van Oosterhout profile image
Lennart van Oosterhout
Real Estate Agent
€1,995,000 k.k.
Living Area
486m2
Plot Size
495m2
Bedrooms
6

Description

A Unique National Monument in the Heart of Delft

Located on the stately Oude Delft, one of the most beautiful canals in the Netherlands, this impressive canal-side residence is a designated national monument with a rich history, a stunning city garden, and approximately 500 m² of living space. Behind the classic façade lies a world of space, light, and authentic architectural details.

The property underwent a thorough and stylish renovation last year. Original features have been carefully restored and combined with modern comfort, including underfloor heating, a new technical installation, and three luxurious bathrooms. With numerous rooms, several living and office spaces, and a generous open-plan kitchen area, this house is ideally suited for large families, dual occupancy, or a representative live/work setup.

The location is exceptional: right in the historic city centre, with cafés, restaurants, shops, and cultural venues just around the corner. Delft Central Station is only a three-minute walk away, offering direct connections to Rotterdam, The Hague, and Amsterdam. The A4 and A13 motorways are also easily accessible.

Layout
Ground Floor

Entrance, long hallway, and impressive main hall featuring a classic black-and-white marble floor and monumental oak staircase. At the front are two rooms with original fireplaces—ideal as offices or consulting rooms. Adjacent is a spacious intermediate room that flows into the sunny, garden-facing living room with monumental fireplace.
From the living room there is access to a corridor with a WC and an additional space perfectly suited to be fitted as a (dining) kitchen. Next to the house is a covered passageway with storage space and access to the sheltered city garden—ideal for bicycles.

First Floor
Generous landing with access to bedrooms, bathroom, and separate toilet. At the rear is a large bedroom with direct access to the second bathroom. This floor also provides access to the side balcony.

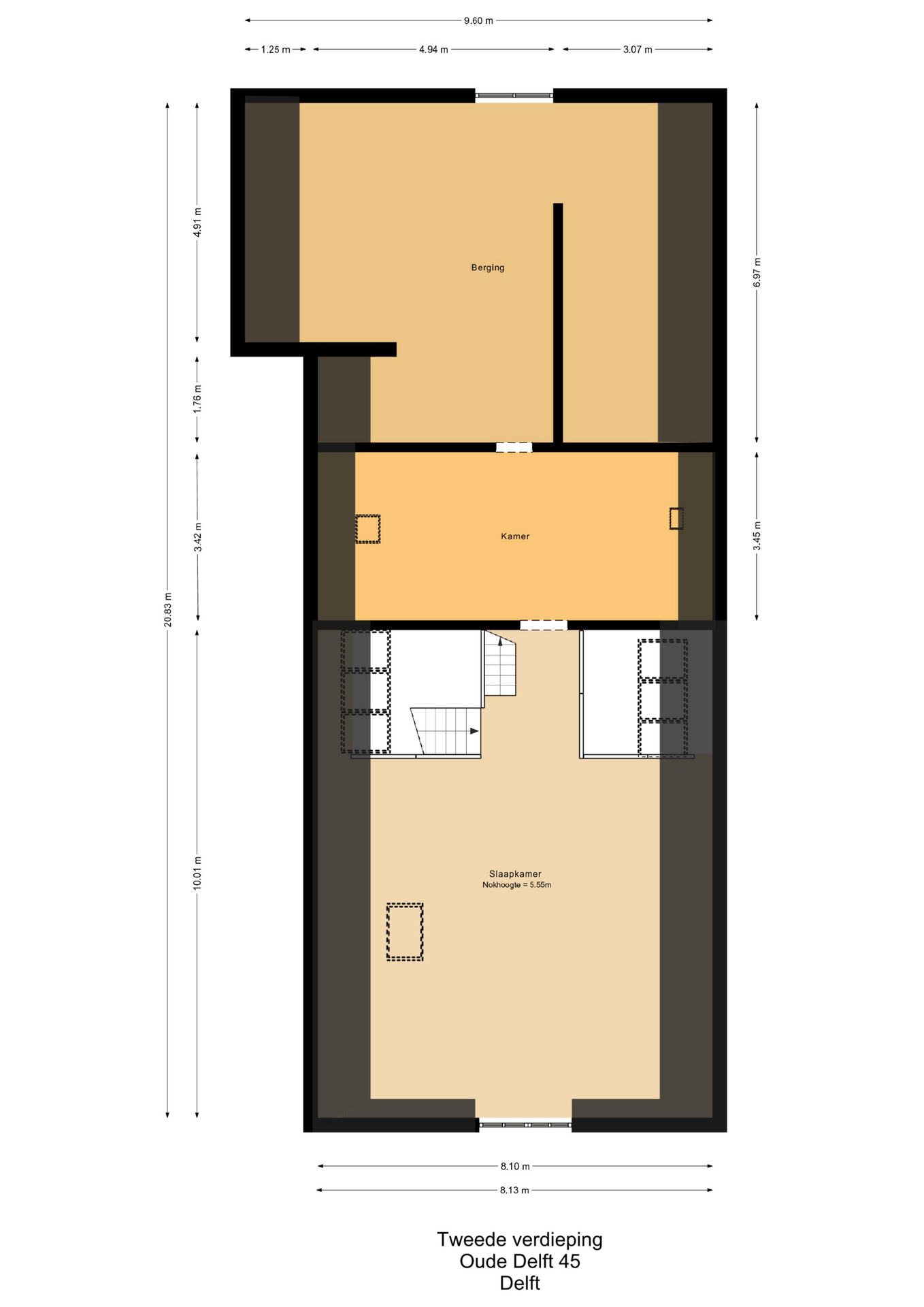
Second Floor
A beautiful floor showcasing the original roof structure. At the front is a bright, multifunctional space. Additionally, there is a large storage room and a toilet. Extra daylight enters through newly installed, high-placed windows above the mezzanine.

Third Floor (Attic Floor)
Landing, spacious open area, large bedroom, and access—via a small inner step—to the bathroom with walk-in shower and bathtub.

Garden
The L-shaped city garden facing southwest is an oasis of peace and privacy. With a full-width terrace, lawn, mature trees, and a storage shed, it offers a unique green retreat in the heart of the city centre.

Additional Features
National monument in excellent condition
Newly installed herringbone parquet flooring on the ground and upper floors
Entire roof and rear attic façade insulated with 4 cm IKO PIR panels
Remeha Elga Ace hybrid 6 kW heat pump (2025)
Ground-floor insulation with 10 cm EPS compression plates
Energy label C
Very well suited for dual occupancy or office/practice at home
Built around 1650
Old-building clause applies
Impressively high ceilings and a unique central staircase
Plot size 495 m² (freehold)
New underfloor heating on ground and first floors
Not owner-occupied; old-building and non-resident clauses apply
No seller’s questionnaire available

Completion by agreement; immediate transfer possible.

A detailed property website is available for this residence. The link can be found in the brochure on Funda.

Features

Transfer of ownership
Asking Price
€ 1.995.000 k.k.
Status
beschikbaar
Acceptance
in overleg
Construction
Kind of house
Grachtenpand
Building type
tussenwoning
Construction period
1650
Energy rating
C
Roof type
zadeldak
Bedrooms
6
Bathrooms
4
Surface Areas And Volume
Living Area
486 m2
Other indoor space
2 m2
Exterior space attached to the buildinge
31 m2
Volume in cubic meters
2111 m3
Plot Size
495 m2
Facilities
In centrum
Baerz & Co Property Brochure

Brochure

Videos

Floor Plans

Storimans en Partners

Ginnekenweg 161
4818 JD Breda

lvanoosterhout@storimansenpartners.nl
+31 76 522 60 90

www.storimansenpartners.nl

Information / Viewing request

Lennart van Oosterhout profile image
Lennart van Oosterhout
Real Estate Agent

Buying a Luxury Property in Delft

Delft is renowned for its artistic legacy, refined lifestyle, and world-class urbanism. The community draws sophisticated residents and investors, offering bespoke residences, access to elite services, and thriving international connections.