Ons kantoor is lid van Baerz & Co Luxury Homes; een internationaal platform dat exclusieve woningmakelaars met elkaar verbindt. Neem contact op met ons secretariaat voor meer informatie over het landelijke aanbod, waarvan u hieronder een selectie kunt bekijken.

HAASTRECHT
Provincialeweg Oost 64 - 2851 AH
Netherlands

Xandra Bek profile image
Xandra Bek
Register makelaar - taxateur
€1,295,000 k.k.
Living Area
180m2
Plot Size
1914m2
Bedrooms
4

Description

DETACHED HOUSE WITH LARGE WORKSHOP, GARAGE, CARPORT AND SPACIOUS GARDEN

A renovated house, a workshop of over 115 m², and a plot of no less than 1,914 m²: this is a place where space and tranquility come together. Perfect for upscalers with their own business or hobby enthusiasts who need just a bit more room, but also suitable for use as a care home. The rural location offers plenty of freedom, while all amenities and main roads are conveniently nearby.

SELLER’S WORD:
“We have lived here with great pleasure for the past 14 years, first with our two daughters and in recent years just the two of us.
It’s a wonderful house to live in, with lots of space for visitors and even more space around the house.
We’ve hosted many parties and BBQs with family and friends in the spacious garden and under the veranda.
It’s lovely to spend time outside because there’s so much growing and blooming—something is always happening in the garden, and many different birds find their way here.
Fresh vegetables from your own garden and hand-picked bouquets from the blooms make outdoor living complete.”

RENOVATED DETACHED HOUSE WITH CHARACTER

This detached house, originally built in 1929, was thoroughly renovated in 2011 with respect for its original charm and character. The roof boarding was replaced, and a beautiful thatched roof was added, combined with modern insulation.
With a living area of approximately 180 m², there’s ample space for the entire family. Thanks to roof, floor, and cavity wall insulation and HR++ glazing, the home is energy-efficient (energy label B), keeping energy costs low.
Inside, you’ll find a cozy and bright living room, a spacious kitchen-diner, utility room, basement, and a home office—ideal for remote work.
The upper floor offers four bedrooms, a luxurious bathroom, and a large attic for storage.

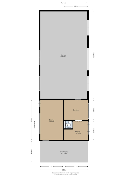
LARGE WORKSHOP FOR BUSINESS, HOBBY, OR CARE FACILITY

Behind the house is a huge workshop of over 115 m², fully renovated in 2012 with a new tiled roof.
Ideal for entrepreneurs working from home, as a care residence, for DIY enthusiasts, hobbyists, or anyone needing extra storage.
The workshop is easily accessible via a wide driveway.
Here you can uniquely combine work and home life without compromise, especially with the added bonus of a newly built garage and carport in 2024.

RURAL LIVING WITH EVERYTHING NEARBY

The rural setting means you can enjoy peace, greenery, and freedom, while daily amenities remain within easy reach.
Supermarkets, schools, and sports clubs are all just a short distance away.
With main roads nearby, you can quickly get to surrounding villages and cities.
Perfect for those who want the benefits of countryside living without the hassle of long drives for groceries or appointments.

The surrounding area offers plenty of opportunities to relax and stay active.
You’re living amidst a green, rural environment with great options for walking, cycling, and enjoying nature.
At the same time, towns like Haastrecht and Gouda are just around the corner, offering shops, restaurants, and other services.
This unique combination of freedom, space, and accessibility makes this location truly special.
Whether you’re looking for an inspiring place to run your business, a perfect family home, or simply a peaceful place to live—this property has it all.

KEY FEATURES:
-Year of construction: 1929, renovated in 2011
-Plot size: 1,914 m² of private land
-Living area: approx. 180 m²
-Equipped with roof, cavity wall, and floor insulation, and full HR++ glazing (except front and back doors)
-New roof boarding and thatched roof (2010)
-Low energy costs (energy label B)
-Garage/workshop over 115 m² with new tiled roof (2012)
-Carport and garage renewed in 2024

DELIVERY: by mutual agreement

Curious about this unique home? Contact us now to schedule a viewing!

Features

Alarm system
Transfer of ownership
Asking Price
€ 1.295.000 k.k.
Status
beschikbaar
Acceptance
in overleg
Construction
Kind of house
Eengezinswoning
Building type
vrijstaande woning
Construction period
1929
Energy rating
B
Roof type
mansarde dak
Bedrooms
4
Bathrooms
1
Surface Areas And Volume
Living Area
180 m2
Other indoor space
4 m2
Exterior space attached to the buildinge
11 m2
External storage space
141 m2
Volume in cubic meters
682 m3
Plot Size
1914 m2
Facilities
Mechanische ventilatie
Alarminstallatie
Glasvezel kabel
Aan water
Vrij uitzicht
Landelijk gelegen
Baerz & Co Property Brochure

Brochure

Videos

Van Herk Makelaars Excellent

Oudehoofdplein 4
3011 TM Rotterdam

xbek@vanherk.nl
+31 102581855

www.vanherk.nl/excellent/

Information / Viewing request

Xandra Bek profile image
Xandra Bek
Register makelaar - taxateur

Buying a Luxury Property in Haastrecht

Haastrecht offers a peaceful riverside lifestyle, elegant housing, and access to both privacy and community. Residents enjoy tailored advisory services, strong connections, and a serene environment that appeals to discerning international buyers.