Ons kantoor is lid van Baerz & Co Luxury Homes; een internationaal platform dat exclusieve woningmakelaars met elkaar verbindt. Neem contact op met ons secretariaat voor meer informatie over het landelijke aanbod, waarvan u hieronder een selectie kunt bekijken.

UITHOORN
Faunalaan 93 - 1422 ZH
Netherlands

John Korver profile image
John Korver
Real estate agent
€1,343,000 k.k.
Living Area
290m2
Plot Size
445m2
Bedrooms
6

Description

Villa Uithoorn presents an exceptional balance of generous space and refined living in the sought-after Legmeer-West residential area. From the moment you arrive, the villa’s 290 m² layout welcomes with light, privacy, and versatility. The approach sets a serene tone, with a wide driveway for multiple cars and a calm street that frames the property’s tranquil presence.

Upon entering, the foyer reveals well-conceived space and discreet storage. The main living room is defined by natural light and seamless indoor-outdoor flow, with French doors opening onto a broad, sunlit garden of 445 m². Multiple terraces, a pond, and quiet corners offer places for rest and gatherings. The open kitchen is thoughtfully finished, complete with a large island and premium appliances arranged for both functionality and conviviality. A separate multifunctional room with private entrance offers flexibility as an office, studio, or fitness area, ideal for those who value autonomy and creative space.

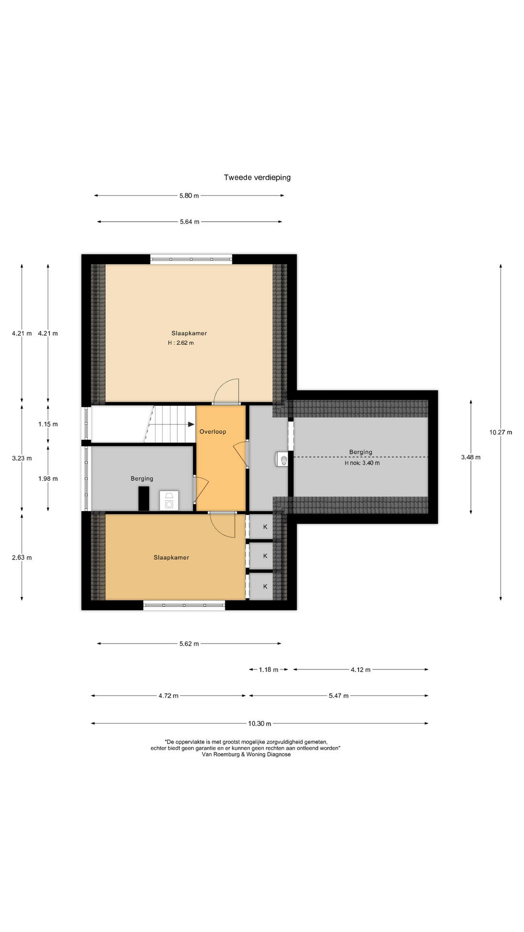
Upstairs, three bedrooms encircle a tranquil landing, while a serene bathroom and additional guest toilet reinforce the commitment to comfort and privacy. The second floor extends the home’s potential with two further bedrooms and abundant storage, responding to the needs of evolving families or collectors.

Throughout the villa, materials like French oak flooring with underfloor heating evoke quiet luxury. The garage, equipped with an electric roll-up door, heating, and workspace potential, connects seamlessly to the home. Energy class A features include 18 solar panels and a hybrid heat pump, supporting efficient, modern living.

Close proximity to rapid tram links to Amsterdam and an array of schools, parks, and sports clubs integrates city accessibility with the leisure rhythms of Uithoorn. The villa offers not only scale and craftsmanship, but an address where tranquility, connectivity, and daily ease coalesce.

Explore Uithoorn with Baerz, Your Trusted Personal Property Finder & Advisor

The complexities of the Uithoorn market, including nuanced negotiation processes, off-market listings, and evolving regulations, reward those who engage with knowledgeable advisors. These specialists provide crucial insights, from property sourcing to due diligence. With access to discreet opportunities and an adept understanding of client needs, trusted advisors offer a clear advantage throughout the search and transactional journey.

Special Features

Solar panels

Features

Transfer of ownership
Asking Price
€ 1.343.000 k.k.
Status
beschikbaar
Acceptance
in overleg
Construction
Kind of house
Villa
Building type
geschakelde woning
Construction period
2009
Energy rating
A
Roof type
samengesteld dak
Bedrooms
6
Bathrooms
1
Surface Areas And Volume
Living Area
290 m2
Other indoor space
22 m2
Volume in cubic meters
1116 m3
Plot Size
445 m2
Facilities
Mechanische ventilatie
Tv kabel
Rookkanaal
Dakraam
Zonnepanelen
Balansventilatie
Natuurlijke ventilatie
Aan rustige weg
In woonwijk
Baerz & Co Property Brochure

Brochure

Videos

Floor Plans

Korver makelaars

Stationsweg 12
3641RG Mijdrecht

welkom@korvermakelaars.nl
+31 297 25 04 21

www.korvermakelaars.nl

Information / Viewing request

John Korver profile image
John Korver
Real estate agent