Ons kantoor is lid van Baerz & Co Luxury Homes; een internationaal platform dat exclusieve woningmakelaars met elkaar verbindt. Neem contact op met ons secretariaat voor meer informatie over het landelijke aanbod, waarvan u hieronder een selectie kunt bekijken.

WOUBRUGGE
Weteringpad 35 - 2481 AS
Netherlands

Lennart van Oosterhout profile image
Lennart van Oosterhout
Real Estate Agent
€2,500,000 k.k.
Living Area
435m2
Plot Size
1009m2
Bedrooms
7

Description

Exclusive Waterfront Living in Woubrugge, Netherlands

On the banks of the Woudwetering, in the idyllic village of Woubrugge, you will find this exclusive detached villa with boathouse and private waterfront. A unique location in the heart of the Green Heart, surrounded by peace, greenery, and water, yet surprisingly central to major cities such as Leiden, Amsterdam, and The Hague. Schiphol International Airport can be reached in less than 30 minutes, making this an ideal base for international professionals and frequent travelers.

Water sports enthusiasts will feel right at home here, with the Wijde Aa, Braassemermeer, and Kagerplassen nearby. Enjoy sunset boat trips to nearby restaurants, peaceful mornings with breakfast on the deck, and evenings in the garden watching boats drift by.

The setting provides a perfect balance between relaxation and daily life, surrounded by wildlife and calm waters.The area also offers a good range of amenities including local schools, sports clubs, and medical facilities, while renowned international schools and business hubs are within comfortable commuting distance.

This bespoke waterside residence offers more than a home – it offers a lifestyle. Designed for elegant living on the water, it combines tranquillity, natural beauty and modern comfort within easy commuting distance of The Hague, Amsterdam and Schipol Airport.

Woubrugge itself is both charming and welcoming, with a strong sense of community. This is a rare opportunity to embrace a refined Dutch waterside lifestyle in an exceptional location.
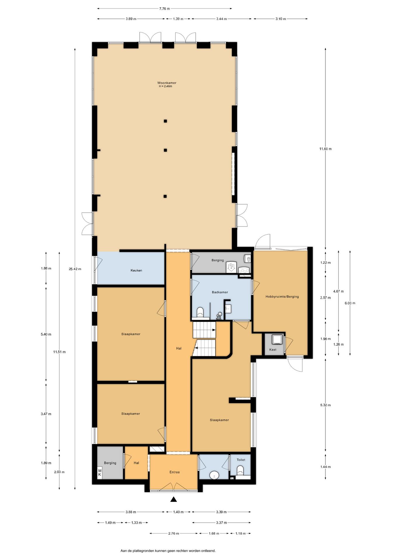
Entrance

The spacious hall gives access to several rooms, with a cloakroom and toilet. The use of high-quality materials and sleek finishes immediately reflect the exclusive character of this villa.

Work & multipurpose rooms

On the left side, directly adjacent to the boathouse, are two generous rooms. One is pre-equipped as a home cinema, with all connections already in place, while the other is ideally suited as a study or hobby room.

Wellness & fitness

On the right side of the villa, you will find the wellness and fitness area. This section includes a bathroom, a room that can be used as a wellness space, and the option to create a full fitness room. An ideal place to relax or stay active, all within your own home.

Living room

The living room is bright and spacious, with stunning views over the water. Large windows let in an abundance of natural light and seamlessly connect the indoors with the outdoors. Our stylist is happy to assist you in designing this room and the other living spaces. We can also provide sketches to help you envision your dream kitchen.

Kitchen

Next to the living room is the “chef’s kitchen”: a separate kitchen area where your chef can cook undisturbed. A practical and luxurious solution.

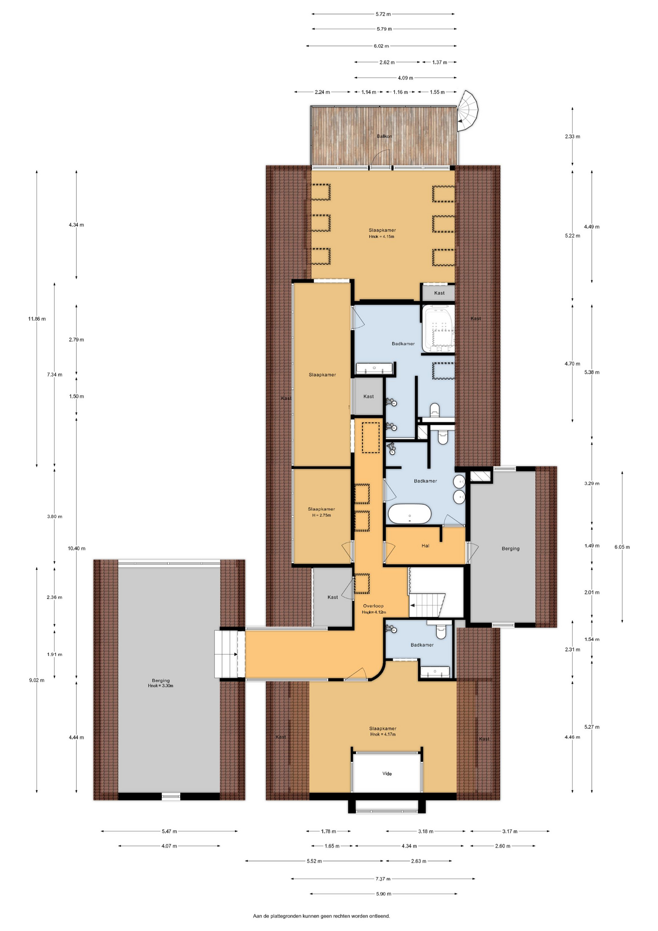
First floor

The first floor features a spacious bedroom with en-suite bathroom at the front of the villa. A beautiful corridor, offering views on both sides, leads to the large storage space above the boathouse. Above the main house are two additional bedrooms that share a bathroom.

Master bedroom

The highlight is the master bedroom: a generously sized room with a walk-in wardrobe, private bathroom, and a balcony overlooking the water. A serene retreat where every day feels like a holiday.

Outdoor living

On the north side you will find the boathouse (10 x 7 meters) with private water (40 x 6 meters). A perfect spot to safely store your boat, with the water literally at your doorstep. The large plot surrounding the villa offers endless possibilities for outdoor enjoyment: from sunny terraces to peaceful seating areas along the waterfront.

Key features

Exclusive detached villa with 435 m² living space

1,000 m² plot directly on the Woudwetering

Boathouse (10 x 7 m) with private water (40 x 6 m)

Spacious living room with panoramic water views

Separate “chef’s kitchen”

Master bedroom with balcony, walk-in closet, and luxury bathroom

Ample private parking and carport

Equipped with a modern KNX home automation system and air conditioning

Recently renovated, move-in ready with room for personal styling

Excellent accessibility to Schiphol, Amsterdam, The Hague, and international schools

Are you looking for an exclusive residence where luxury, space, and waterfront living come together? Then Weteringpad 35 is absolutely worth a visit. Whether you are an expat looking for a central yet peaceful location, or an international investor searching for a unique high-end property in the Netherlands, this villa offers an exceptional opportunity. We warmly invite you to discover this unique home together with our stylist and explore all the possibilities to create your dream residence.

Disclaimer
This information has been compiled with the utmost care. However, we do not accept any liability for any incompleteness, inaccuracies, or otherwise, nor for the consequences thereof. This sales information should not be considered as an offer or a contract and is provided subject to the approval of the seller(s). All stated measurements and surfaces are indicative. An agreement is only established at the moment the purchase contract, drawn up by the realtor, has been reviewed and signed by both parties. Until that time, both parties are entitled to withdraw from the transaction without any compensation of costs. The NVM purchase contract will be used. In all agreements, the deposit/bank guarantee amounts to 10% of the purchase price.

Features

Air conditioning
Transfer of ownership
Asking Price
€ 2.500.000 k.k.
Status
beschikbaar
Acceptance
in overleg
Construction
Kind of house
Villa
Building type
vrijstaande woning
Construction period
1999
Energy rating
A
Roof type
zadeldak
Bedrooms
7
Bathrooms
4
Surface Areas And Volume
Living Area
435 m2
Other indoor space
0 m2
Exterior space attached to the buildinge
13 m2
Volume in cubic meters
1602 m3
Plot Size
1009 m2
Facilities
Mechanische ventilatie
Tv kabel
Airconditioning
Dakraam
Glasvezel kabel
Domotica
Aan water
Aan rustige weg
In woonwijk
Aan vaarwater
In bosrijke omgeving
Landelijk gelegen
Baerz & Co Property Brochure

Brochure

Videos

Storimans en Partners

Ginnekenweg 161
4818 JD Breda

lvanoosterhout@storimansenpartners.nl
+31 76 522 60 90

www.storimansenpartners.nl

Information / Viewing request

Lennart van Oosterhout profile image
Lennart van Oosterhout
Real Estate Agent

Buying a Luxury Property in Woubrugge

Woubrugge offers a discreet, community-focused lifestyle, set within tranquil waterways and curated luxury. Its international appeal is enhanced by tailored real estate services and enduring cultural heritage.