Ons kantoor is lid van Baerz & Co Luxury Homes; een internationaal platform dat exclusieve woningmakelaars met elkaar verbindt. Neem contact op met ons secretariaat voor meer informatie over het landelijke aanbod, waarvan u hieronder een selectie kunt bekijken.

Villa for sale in WOUW

WOUW Akkerstraat 5 a - 4724 SX The Netherlands


Erwin Schuurbiers profile image
Erwin Schuurbiers
Real Estate Agent
+31 164685925
info@helmigmakelaardij.nl

Helmig Makelaardij en Taxatieburo o.z. B.V.
Dorpsstraat 107
4661 HN Halsteren
NETHERLANDS
+31 164-685925
www.helmigmakelaardij.nl
info@helmigmakelaardij.nl

Living area
231m2
Plot size
1010m2
Bedrooms
4

Description

A gem in Wouw – luxury, space and efficiency at the highest level

At the edge of the charming and bourgondic village of Wouw, in a quiet location with optimal privacy and a beautiful view of the windmill, stands this stylish notary residence. Built in 2008, the house is visibly finished to a high standard and exudes quality and comfort. This gem in Wouw perfectly combines character with modern living convenience.

Thanks to sustainable installations – including a geothermal heat pump and 29 solar panels – the property holds an excellent energy label A++.

With a living area of approximately 231 m², the home offers a spacious and comfortable living experience with bright and well-designed rooms. The living room forms the warm heart of the house, overlooking the garden, and features a semi-open kitchen fully equipped with built-in appliances.

The ground floor also includes a home office or study, a practical utility room and a large multifunctional wing. This wing can serve as an office, salon or practice space, or – in combination with the garage with a full upper floor – as a comfortable guest or in-law suite. A private toilet and kitchenette are already present.

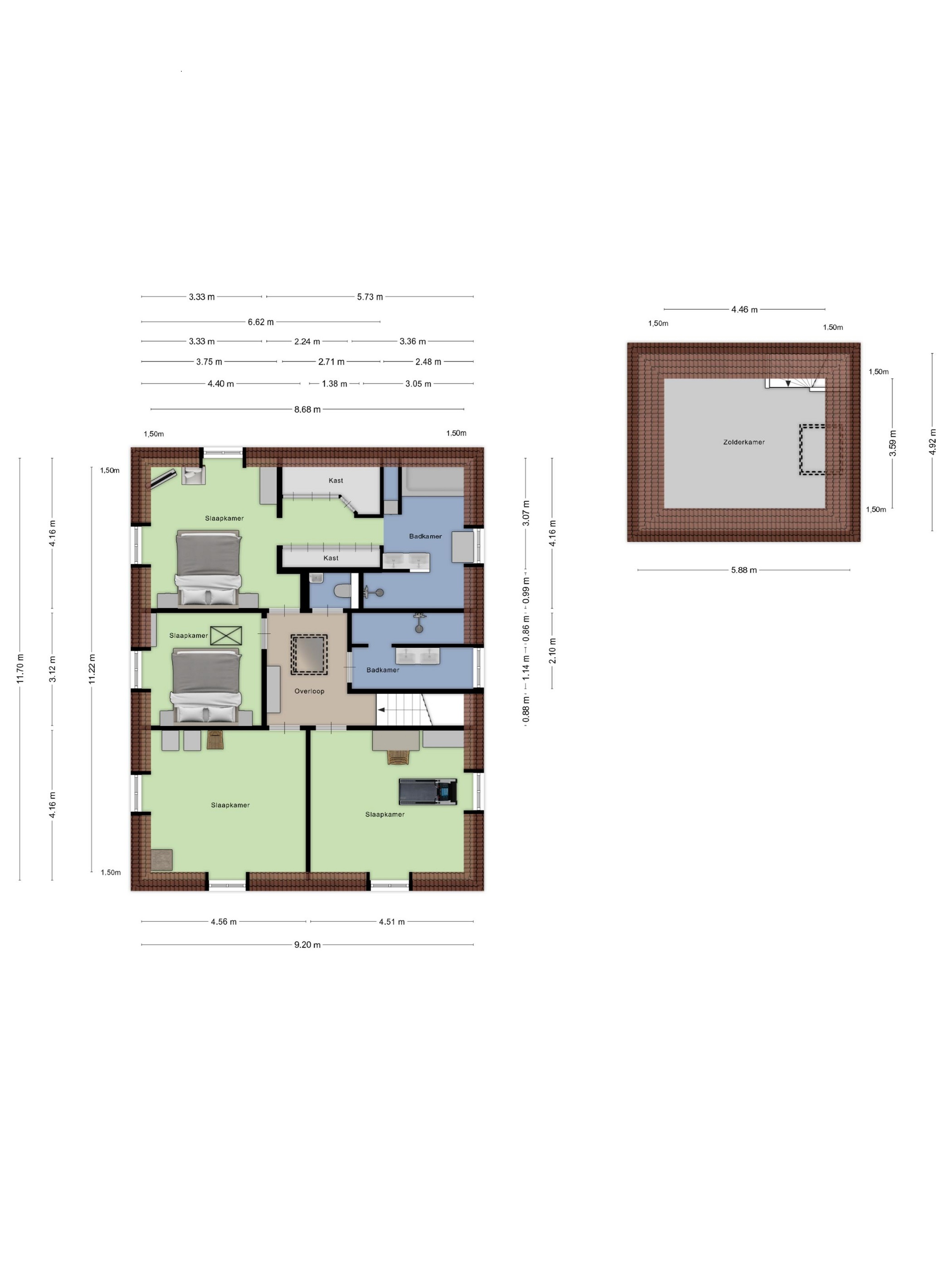
On the first floor, there are four bedrooms, including a spacious master bedroom with walk-in closet and luxurious full en-suite bathroom. For children or guests, there is a second full bathroom and a separate toilet. A beautiful skylight provides the landing with abundant natural daylight.

A staircase leads to the second floor, a full-width open space with potential for a hobby area or generous storage.

Outdoor living has been carefully designed. The garden is beautifully landscaped and excellently maintained, featuring natural stone terraces, lush greenery and an automatic irrigation system. The sunny orientation, the double garage with polished and coated concrete floor, and the generous driveway – accessed via a two-part electric gate that radiates class and quality – all contribute to the premium character of this property. The views of the surrounding fields and the Wouw windmill are stunning.

LAYOUT
Ground floor (concrete floor)
Entrance / hall with staircase to the first floor; plastered walls; natural stone floor; plastered ceiling.

Utility closet: with extensive installation of 17 groups, 3-phase connection, 2 solar panel groups, 6 residual-current devices and alarm system.

Toilet: modern tiling, a wall-mounted toilet and small wash basin; walls finished in plaster and natural stone; natural stone floor; ceiling with recessed lighting.

Living room (approx. 75.5 m² including kitchen) spacious L-shaped living area with French doors to the garden and terrace. The elegant stone fireplace with built-in gas fire forms a focal point of the interior. The walls (with integrated speakers) are plastered, the floor is natural stone and the ceiling features multiple light points and recessed spotlights.

Kitchen: modern Bosch and Miele built-in appliances with cooking and sink island and integrated dining table; composite countertop with double sink and Quooker; Miele induction cooktop with Miele extractor hood; cabinet wall with Bosch built-in coffee machine, Bosch refrigerator (with fresh zone), Bosch freezer, two Bosch combination oven/microwaves, ATAG electric oven (90 cm) and Miele dishwasher at ergonomic height.

Office or playroom: plastered walls, natural stone floor, plastered ceiling.

Utility room: washing machine and dryer connections at ergonomic height, practical laundry chute from the bathroom, plastered walls, natural stone floor, ceiling with recessed lighting, door to garden and terrace and door to the multifunctional wing.

Multifunctional wing (with separate entrance): ideal as office, practice space, salon or in-law suite; consists of two rooms; fitted with kitchenette and separate toilet; natural stone floor; ceiling with recessed lighting; door to garage.

First floor (concrete floor)
Spacious hallway: with skylight and access to the bedrooms and central toilet.

Master bedroom: with walk-in closet; plastered walls; PVC flooring; ceiling with recessed lighting.

Luxurious en-suite bathroom: finished with natural stone; equipped with large bathtub, walk-in shower, double wash basin and laundry chute to utility room.

Three additional bedrooms: each with two dormer windows; plastered walls; PVC flooring; ceilings with recessed lighting; from the middle bedroom a loft ladder leads to the second floor.

Second luxurious bathroom (for children or guests): finished in natural stone; with dormer window; large walk-in shower and double wash basin.

Toilet: separate, with wall-mounted toilet and wash basin; plastered walls finished with natural stone.

Second floor (wooden floor)
Spacious attic (approx. 50 m²) with skylight and visual connection to the first floor; roof structure and wooden support beams visible; possibility to create hobby room or two full bedrooms by adding a fixed staircase.

Outbuildings
Double garage (approx. 37 m²): directly connected to the house; two electrically operated sectional doors to the driveway; separate side door to the garden; installation space for heat pump system and solar inverter; polished and coated concrete floor; fixed staircase to first floor and room (man cave or chill room with bar – approx. 16 m²) above the garage, including installation space for mechanical ventilation unit and central vacuum system for the entire house.

Exterior wall of the garage: equipped with charging point for electric cars.

Garden
Beautifully landscaped garden, fully enclosed; with borders, lawn, outdoor tap, irrigation system, garden lighting and natural stone terraces.
Front garden with large driveway suitable for multiple vehicles; finished with gravel; enclosed with a wide electric double gate and matching pedestrian door, both crafted from the same material, providing a luxurious and elegant appearance.
Absolute privacy, tranquility and a beautiful view of the fields and the windmill of Wouw.

Construction details
Main house:
Traditionally built cavity wall construction; brick masonry; ground and first floors in concrete; second floor in wood; roof structure covered with ceramic roof tiles; hardwood window frames with divided lights and three-point locks.
Garage:
Traditionally built cavity wall construction; brickwork; concrete ground floor; wooden upper floor; roof structure covered with ceramic roof tiles.

Technical specifications
Insulation:
- Floor, cavity wall and roof insulation; HR++ double glazing.
- Additional: 29 solar panels.
- Energy label A++ (valid until 28-05-2031).

Heating and hot water:
- Underfloor heating on the ground floor, garage and first floor as main heating, powered by a geothermal heat pump.
- Underfloor heating in all rooms, individually adjustable via separate thermostats.
- Extra comfort: gas fireplace in the living room.

Features

Transfer of ownership
price
€ 1.165.000 k.k.
Status
beschikbaar
Acceptance
in overleg
Construction
Kind of house
Eengezinswoning
Building type
vrijstaande woning
Construction period
2008
Energy rating
A_PP
Roof type
mansarde dak
Bedrooms
4
Bathrooms
2
Surface Areas And Volume
Living area
231 m2
Other indoor space
95 m2
Volume in cubic meters
1209 m3
Plot size
1010 m2
facilities
Mechanische ventilatie
Alarminstallatie
Zonnepanelen
Natuurlijke ventilatie
Landelijk gelegen
Baerz & Co Property Brochure

Brochure

Information / Viewing request

Videos

Video Akkerstraat 5 a

Photos

Floor Plans