Ons kantoor is lid van Baerz & Co Luxury Homes; een internationaal platform dat exclusieve woningmakelaars met elkaar verbindt. Neem contact op met ons secretariaat voor meer informatie over het landelijke aanbod, waarvan u hieronder een selectie kunt bekijken.

AMSTERDAM, NH
Kalverstraat 218 E - 1012 XJ
Les Pays-Bas

Niels Eering profile image
Niels Eering
Real Estate Agent
€3,250 p.m.
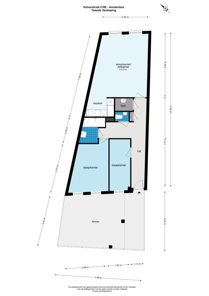
Surface habitable
72m2
Superficie du terrain
N/A
Chambres
2

Description

L’appartement Amsterdam City Centre Kalverstraat offre 72 m² d’espace de vie optimisé, discrètement niché au-dessus de l’effervescence de la célèbre rue commerçante. Entrez par le hall central de l’immeuble, montez en ascenseur, puis pénétrez dans une résidence où la construction moderne et l’isolation soignée instaurent une quiétude rare au cœur d’Amsterdam.

Deux chambres confortables jouxtent une large terrasse, offrant flexibilité pour le télétravail, les invités ou un espace de ressourcement. Le séjour lumineux, ouvert par des portes-fenêtres sur de petits balcons parisiens, relie l’intérieur au rythme de la ville tandis que le parquet en chêne apporte à l’atmosphère chaleur et raffinement. La cuisine ouverte, parfaitement équipée d’appareils intégrés et de rangements pratiques, s’inscrit naturellement dans l’espace convivial.

La salle de bains comprend une baignoire et une vasque contemporaine, avec en complément un WC séparé et une buanderie avec raccordement pour lave-linge. Une cave de 7 m² ajoute au quotidien un espace fonctionnel, et l’ascenseur assure un accès fluide à tous les niveaux. L’ensemble bénéficie d’une isolation complète — toiture, murs, sols, double vitrage — permettant un confort optimal, classe énergétique C.

Entre Rokin, Singel et Heiligeweg, l’adresse place boutiques, lieux culturels, supermarchés et transports à quelques minutes à pied. Malgré la proximité du cœur battant d’Amsterdam, ce bien moderne s’affirme comme un havre urbain paisible, rare alliance d’intimité, d’accessibilité et de design subtil.

Découvrez Amsterdam avec Baerz, votre conseiller et chasseur immobilier personnel de confiance

Pour naviguer le marché de prestige d’Amsterdam, il faut s’appuyer sur une connaissance pointue de la ville, la discrétion et des compétences avérées en négociation. Les meilleurs conseillers accèdent à des biens confidentiels, expliquent les subtilités réglementaires et identifient la valeur où l’opportunité ne se montre que rarement. Les équipes conseil opèrent une sélection poussée et assurent la représentation, renforçant votre position, assurant le bon déroulé de la transaction et veillant au respect de votre vie privée à chaque étape.

Évitez les pièges courants

Les acheteurs internationaux perdent souvent un temps précieux à naviguer entre des annonces en ligne dupliquées, obsolètes ou trompeuses, d’autant que près de 30% des propriétés de luxe ne sont jamais mises sur le marché.
Les agents du vendeur représentent les intérêts du vendeur, pas les vôtres, et une simple demande d’information peut entraîner votre inscription comme “client” auprès d’une agence sans votre consentement.
Avec Baerz Property Finders & Advisors, vous évitez totalement ces écueils.
Nous agissons exclusivement en votre nom, en vous offrant une représentation indépendante, des conseils transparents et un accès à toutes les propriétés disponibles, y compris les opportunités privées et off-market que les autres ne voient jamais.

Curieux de savoir comment obtenir votre propre Conseiller Immobilier Personnel ? Contactez-nous pour découvrir comment nous pouvons défendre vos intérêts et vous ouvrir l’accès à l’ensemble du marché.

Caractéristiques

Transfert de propriété
Prix de location
€ 3.250 p.m.
Statut
beschikbaar
Acceptation
in overleg
Construction
Type de maison
Bovenwoning
Type de bâtiment
appartement
Période de construction
1997
Classe énergétique
C
Type de toit
plat dak
Chambres
2
Salles de bains
1
Surfaces et volumes
Surface habitable
72 m2
Autre espace intérieur
0 m2
Espace extérieur attenant au bâtiment
34 m2
Espace de stockage externe
7 m2
Volume en mètres cubes
220 m3
Équipements
Mechanische ventilatie
Tv kabel
Lift
Frans balkon
In centrum
Beschutte ligging
Baerz & Co Property Brochure

Brochure

Vidéos

11 Makelaars - Amsterdam Noord

Mt. Lincolnweg 36 - 617
1033SN Amsterdam

info@11makelaars.nl
+31 20 20 50 208

www.11makelaars.nl

Demande d'information / de visite

Niels Eering profile image
Niels Eering
Real Estate Agent