Ons kantoor is lid van Baerz & Co Luxury Homes; een internationaal platform dat exclusieve woningmakelaars met elkaar verbindt. Neem contact op met ons secretariaat voor meer informatie over het landelijke aanbod, waarvan u hieronder een selectie kunt bekijken.

NISTELRODE
Wilhelminastraat 3 - 5388 EP
Pays-Bas

Bram Van der Wielen profile image
Bram Van der Wielen
Owner, MMCEPI register makelaar
€1,295,000 k.k.
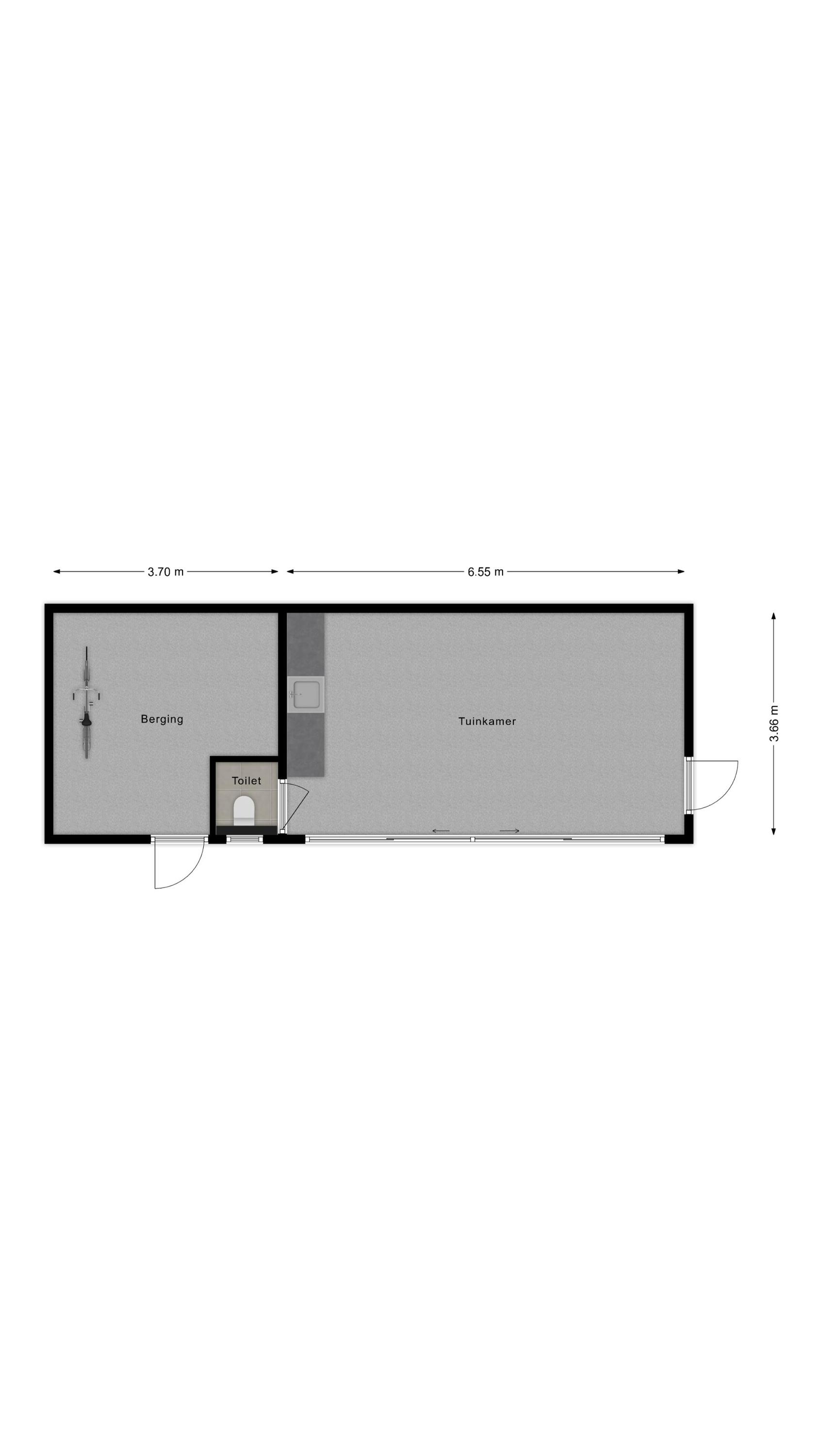
Surface habitable
304m2
Superficie du terrain
649m2
Chambres
4

Description

La Villa Nistelrode établit une nouvelle référence en matière d'art de vivre contemporain, associant 304 m² d’espaces raff inés à une classe énergétique A+++ au cœur de l’un des lotissements résidentiels les plus discrets de la région. Construite récemment, cette villa incarne le luxe subtil, alliant conception intelligente et solutions de durabilité supérieure, telles qu’une pompe à chaleur géothermique, des panneaux solaires, un vitrage HR++ et une isolation intégrale. Derrière un jardin paysager signé par un architecte, la propriété offre une intimité rare à proximité immédiate des commodités, de la nature et des principaux axes routiers.

Le cœur de la maison est une vaste cuisine gastronomique conçue avec des matériaux haut de gamme et des appareils électroménagers premium, harmonieusement reliée à un séjour baigné de lumière. Le chauffage au sol, un système de ventilation avancé et un revêtement de sol continu résistant aux rayures insufflent une ambiance enveloppante, propice au confort et à la sérénité. Quatre chambres spacieuses incluent une suite principale avec dressing, tandis que la salle de bains principale dispose d’une baignoire profonde, d’un mobilier sur mesure et d’une douche à l’italienne. L’étage offre la possibilité d’aménager d’autres chambres selon les besoins.

En complément de la résidence principale, une maison d’invités isolée avec bar et sanitaires propose des usages pluriels, du bureau privé à l’espace de loisirs. Les espaces extérieurs sont sublimés par une cuisine couverte et un jacuzzi, entourés d’un jardin mature. La Villa Nistelrode s’impose comme une villa de luxe exemplaire à vendre à Nistelrode, offrant un habitat tourné vers l’avenir pour ceux qui valorisent l’espace, le savoir-faire et le design novateur.

Explorez Nistelrode avec Baerz, votre conseiller et chercheur de biens immobiliers de confiance

Faire appel à un conseiller expérimenté est essentiel pour accéder au marché confidentiel de Nistelrode. La majorité des transactions de prestige se réalisent hors marché ou de façon privée, nécessitant réseau ancré localement et expertise internationale. Les subtilités de zonage, de patrimoine et des négociations requièrent des intermédiaires aguerris, capables de sécuriser des biens uniques et des conditions optimisées.

Évitez les pièges courants

Les acheteurs internationaux perdent souvent un temps précieux sur des annonces en double, obsolètes ou trompeuses en ligne, d'autant plus que près de 30% des maisons de luxe n'apparaissent jamais sur le marché public. Les agents du vendeur représentent les intérêts du vendeur, pas ceux de l'acheteur. Même demander des informations sur une propriété peut entraîner l'enregistrement par un agent du vendeur comme leur « client » sans votre consentement.
Avec Baerz Property Finders & Advisors, vous évitez entièrement tous ces pièges. Nous travaillons uniquement en votre nom, offrant une représentation indépendante, des conseils clairs et un accès à toutes les propriétés disponibles, y compris les opportunités hors marché que d'autres ne voient jamais.

Intéressé par un conseiller personnel en immobilier ?

Nous vous montrons toutes les maisons disponibles en un seul endroit. N'hésitez pas à nous contacter pour savoir comment nous pouvons répondre à vos besoins et protéger vos intérêts exclusivement.

Caractéristiques

Panneaux solaires
Système d'alarme
Transfert de propriété
Prix demandé
€ 1.295.000 k.k.
Statut
beschikbaar
Acceptation
in overleg
Construction
Type de maison
Villa
Type de bâtiment
vrijstaande woning
Période de construction
2019
Classe énergétique
A+++
Type de toit
zadeldak
Chambres
4
Salles de bain
1
Surfaces et volume
Surface habitable
304 m2
Autre espace intérieur
0 m2
Espace de stockage externe
38 m2
Volume en mètres cubes
1076 m3
Superficie du terrain
649 m2
Installations
Alarminstallatie
Buitenzonwering
Jacuzzi
Glasvezel kabel
Zonnepanelen
Aan rustige weg
In woonwijk
Baerz & Co Property Brochure

Brochure

Kordaat Makelaars

Liessentstraat 9 a
5405 AH Uden

bram@kordaatmakelaars.nl
+31 623454361

www.kordaatmakelaars.nl

Demande d'information / de visite

Bram Van der Wielen profile image
Bram Van der Wielen
Owner, MMCEPI register makelaar

Acheter une propriété de luxe à Nistelrode

Nistelrode propose à une clientèle exigeante un équilibre subtil entre luxe, intimité et esprit communautaire. Services d’excellence, culture locale riche et connexions internationales attirent les plus fins connaisseurs en quête de valeur pérenne.