Ons kantoor is lid van Baerz & Co Luxury Homes; een internationaal platform dat exclusieve woningmakelaars met elkaar verbindt. Neem contact op met ons secretariaat voor meer informatie over het landelijke aanbod, waarvan u hieronder een selectie kunt bekijken.

SCHOORL
Duinweg 65 - 1871 AD
Les Pays-Bas

Angeline Croonen profile image
Angeline Croonen
Real Estate Agent
€2,745,000 k.k.
Surface habitable
273m2
Superficie du terrain
7454m2
Chambres
4

Description

La maison de campagne Schoorl se niche au bout d’un long chemin forestier, offrant une retraite sereine à quelques instants seulement de la côte néerlandaise. Cette résidence d’exception, conçue en 1935 par l’architecte Royaards, conjugue quiétude, nature et histoire, faisant de Schoorl une propriété de campagne absolument unique.

Construite à partir de matériaux datant du XVIIe siècle, la demeure principale exprime tout son héritage à travers ses cheminées imposantes, ses poutres en chêne apparentes, ses murs enduits d’argile et ses vastes planchers en chêne. Les 273 m² d’espace de vie dévoilent de paisibles recoins et des pièces baignées de lumière, dont un séjour tourné vers le jardin réchauffé par une cheminée, un salon d’accueil avec alcôve surélevée, ainsi qu’un bureau attenant avec vue sur le parc, parfait pour la concentration. Les conforts modernes s’accordent à l’authenticité, à l’image d’une salle de bain en tadelakt et d’une installation de chauffage central.

L’âme de cette demeure rayonne à l’extérieur, sur un domaine privé et entièrement clos de 7 454 m², ceint d’un fossé et traversé de rivières sablonneuses, où le chant des oiseaux compose la mélodie ambiante. Le parc comprend une maison d’amis indépendante et équipée, des dépendances, un paisible pavillon de thé et un four à pizza en argile, autant d’invitations à la tranquillité comme aux moments de convivialité.

Avec quatre chambres, deux salles de bain, une toiture de chaume rénovée et des installations câblées, ce lieu vit au rythme de la nature. Exclusivité tout en sobriété, la maison de campagne allie intimité, confort et lien authentique à la terre. Le luxe rare du silence et de l’espace vous attend à Duinweg à Schoorl.

Découvrez Schoorl avec Baerz, votre conseiller et chasseur immobilier personnel de confiance

Expertise et discrétionLe secteur premium exige expertise locale et réseau solide. Les conseillers donnent accès à des biens rarement publics. Négociation stratégique, maîtrise du patrimoine, réglementation écologique et dynamique de marché assurent une expérience optimale, sans compromis sur la confidentialité ni les valeurs personnelles.

Évitez les pièges courants

Les acheteurs internationaux perdent souvent un temps précieux à naviguer entre des annonces en ligne dupliquées, obsolètes ou trompeuses, d’autant que près de 30% des propriétés de luxe ne sont jamais mises sur le marché.
Les agents du vendeur représentent les intérêts du vendeur, pas les vôtres, et une simple demande d’information peut entraîner votre inscription comme “client” auprès d’une agence sans votre consentement.
Avec Baerz Property Finders & Advisors, vous évitez totalement ces écueils.
Nous agissons exclusivement en votre nom, en vous offrant une représentation indépendante, des conseils transparents et un accès à toutes les propriétés disponibles, y compris les opportunités privées et off-market que les autres ne voient jamais.

Curieux de savoir comment obtenir votre propre Conseiller Immobilier Personnel ? Contactez-nous pour découvrir comment nous pouvons défendre vos intérêts et vous ouvrir l’accès à l’ensemble du marché.

Caractéristiques

Transfert de propriété
Prix demandé
€ 2.745.000 k.k.
Statut
beschikbaar
Acceptation
in overleg
Construction
Type de maison
Landhuis
Type de bâtiment
vrijstaande woning
Période de construction
1935
Classe énergétique
D
Type de toit
schilddak
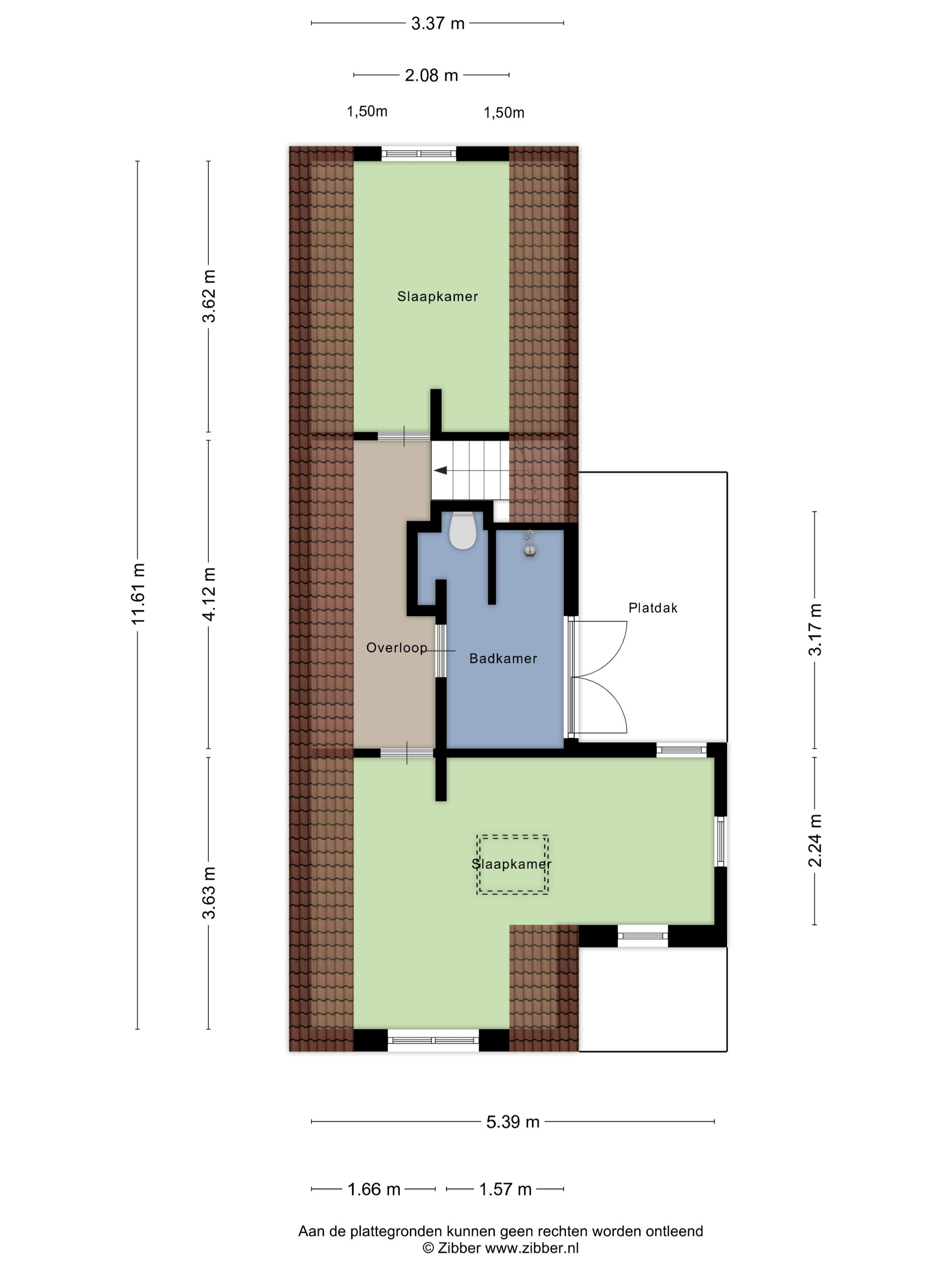
Chambres
4
Salles de bains
2
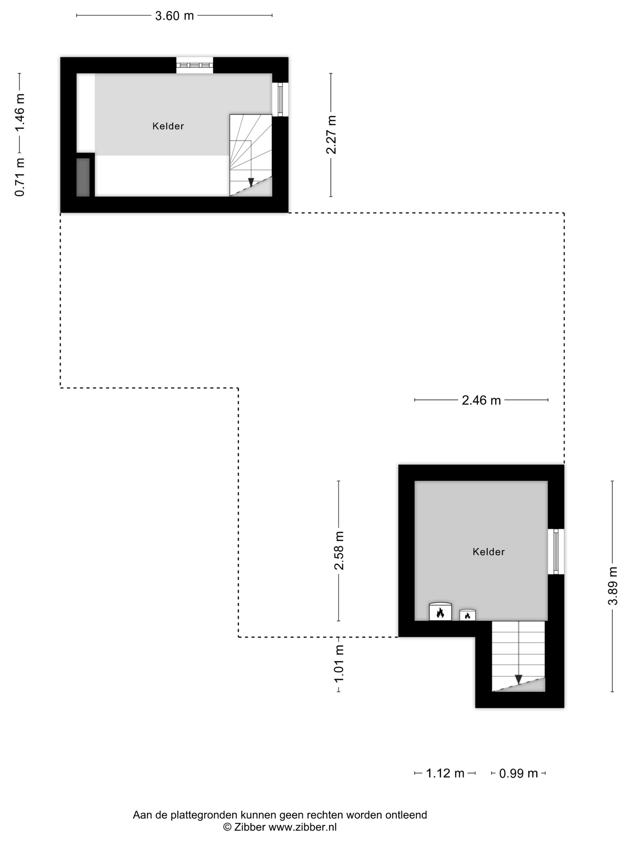
Surfaces et volumes
Surface habitable
273 m2
Autre espace intérieur
17 m2
Espace de stockage externe
94 m2
Volume en mètres cubes
660 m3
Superficie du terrain
7454 m2
Équipements
Tv kabel
Rookkanaal
Dakraam
Vrij uitzicht
Beschutte ligging
In bosrijke omgeving
Baerz & Co Property Brochure

Brochure

Vidéos

Croon Makelaars

Breelaan 41
1861 GD Bergen

info@croonmakelaars.nl
+31 (0)72 743 32 44

www.croonmakelaars.nl

Demande d'information / de visite

Angeline Croonen profile image
Angeline Croonen
Real Estate Agent