Ons kantoor is lid van Baerz & Co Luxury Homes; een internationaal platform dat exclusieve woningmakelaars met elkaar verbindt. Neem contact op met ons secretariaat voor meer informatie over het landelijke aanbod, waarvan u hieronder een selectie kunt bekijken.

VOORHOUT
Jacoba Van Beierenweg 136 a - 2215 KX
Нидерланды

Rick Broekhof profile image
Rick Broekhof
Real estate agent
€1,175,000 k.k.
Жилая площадь
422m2
Размер участка
726m2
Спальни
5

Описание

Вилла Voorhout воплощает утонченную приватность на площади 422 м², обрамленной открытыми видами и природным окружением региона Болленстрейк. Просторный холл встречает мягким светом от больших окон, подчеркивая каждую линию и поверхность. Просторные гостиные зоны, камин и отдельная столовая создают тонкую гармонию уюта и гостеприимства. Паркет и аутентичная монастырская плитка придают интерьеру спокойное начало. Пять спален, распределенных на трех уровнях, обеспечивают гибкость — все комнаты залиты естественным светом, некоторые с видом на сад и с кондиционером. Два полностью оборудованных санузла, один из которых с сауной, сопровождаются продуманными деталями: четыре туалета, достаточное количество мест для хранения и современные возможности подключения, включая оптоволокно. Кухня выходит как во двор, так и на луг, объединяя домашние ритуалы с видом на природу. Отдельные входы позволяют организовать двойную резиденцию или сочетать работу и личную жизнь. Участок в 726 м² окружает дом ландшафтным садом, кирпичным барбекю и уединенными уголками. Длинная подъездная дорога и частная парковка обеспечивают деликатность и удобство прибытия. Архитектура позволяет адаптацию под семейную жизнь или домашний бизнес. Модернизированное отопление, кондиционирование с апреля 2024 года и возможность установки солнечных панелей подчеркивают ориентированность на комфорт и будущее. Из этой виллы к удобствам деревни Voorhout и железнодорожной станции можно легко добраться на велосипеде, что обеспечивает доступ в город, не жертвуя покоем. Эта вилла дарит редкое сочетание приватности, масштаба и транспортной доступности — для тех, кто стремится к глубокой тишине в жилой среде.

Исследуйте Voorhout вместе с Baerz — вашим надежным советником и личным поисковиком недвижимости



Избегайте распространённых ошибок

Международные покупатели часто тратят ценное время на изучение дублирующихся, устаревших или вводящих в заблуждение онлайн-объявлений, особенно учитывая, что почти 30% объектов элитной недвижимости вообще не появляются на открытом рынке.
Агенты продавца представляют интересы продавца, а не ваши, и даже простой запрос о недвижимости может привести к тому, что агентство зарегистрирует вас как своего “клиента” без вашего согласия.
С Baerz Property Finders & Advisors вы полностью избегаете этих подводных камней.
Мы действуем исключительно в ваших интересах, предоставляя независимое представительство, прозрачные рекомендации и доступ ко всем доступным объектам, включая частные и вне-рыночные предложения, которых другие никогда не увидят.

Хотите узнать, как получить собственного персонального консультанта по недвижимости? Свяжитесь с нами, чтобы узнать, как мы можем представлять ваши интересы и открыть вам весь рынок.

Особенности

Кондиционер
Передача права собственности
Запрашиваемая цена
€ 1.175.000 k.k.
Статус
beschikbaar
Принятие
in overleg
Строительство
Тип дома
Villa
Тип здания
vrijstaande woning
Период строительства
1975
Энергетический рейтинг
C
Тип крыши
zadeldak
Спальни
5
Ванные комнаты
2
Площадь и объем
Жилая площадь
422 m2
Другое внутреннее пространство
0 m2
Внешнее складское помещение
7 m2
Объем в кубических метрах
1387 m3
Размер участка
726 m2
Удобства
Mechanische ventilatie
Tv kabel
Airconditioning
Rookkanaal
Sauna
Glasvezel kabel
Natuurlijke ventilatie
Vrij uitzicht
Beschutte ligging
Landelijk gelegen
Baerz & Co Property Brochure

Брошюра

Видео

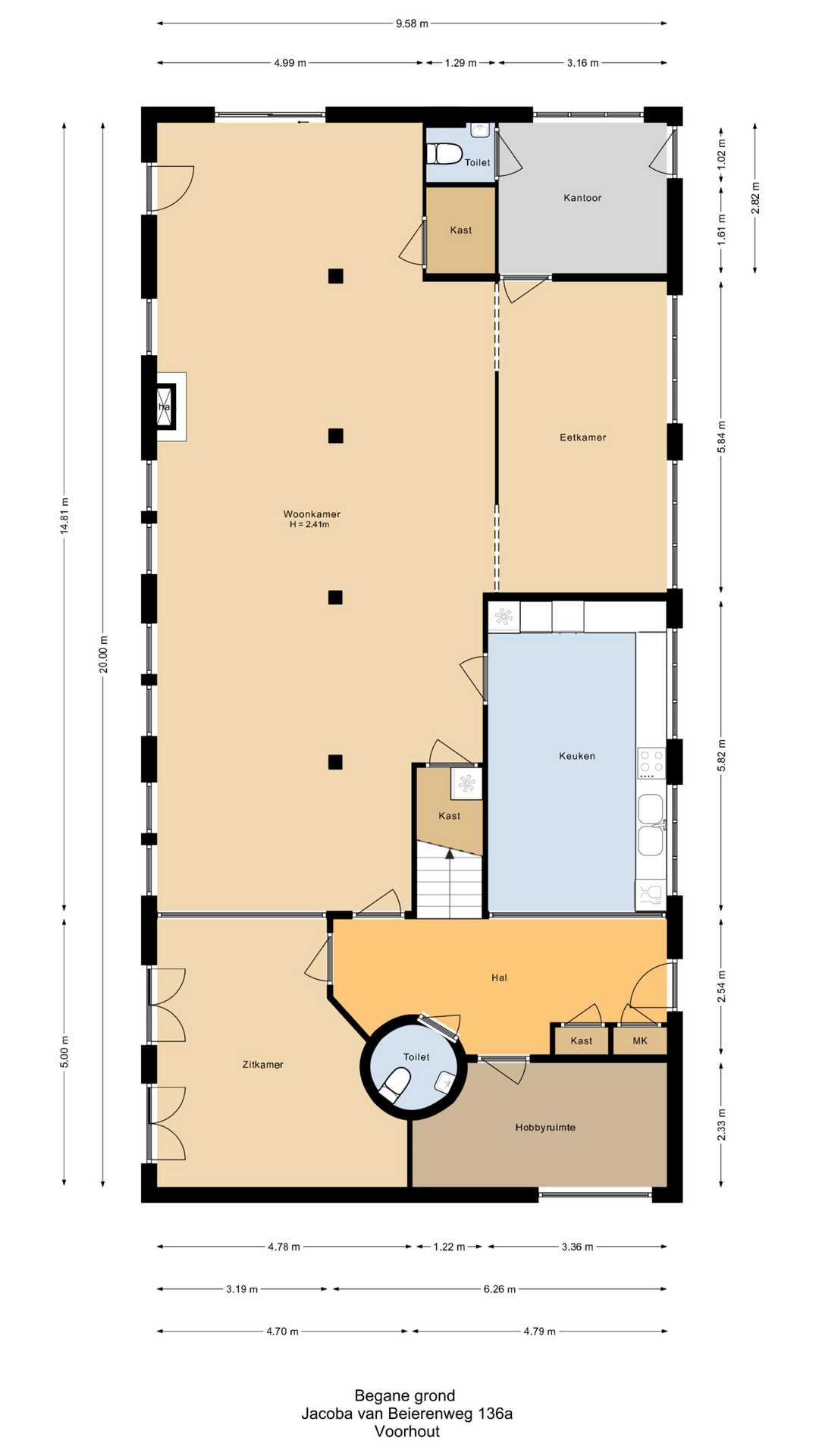
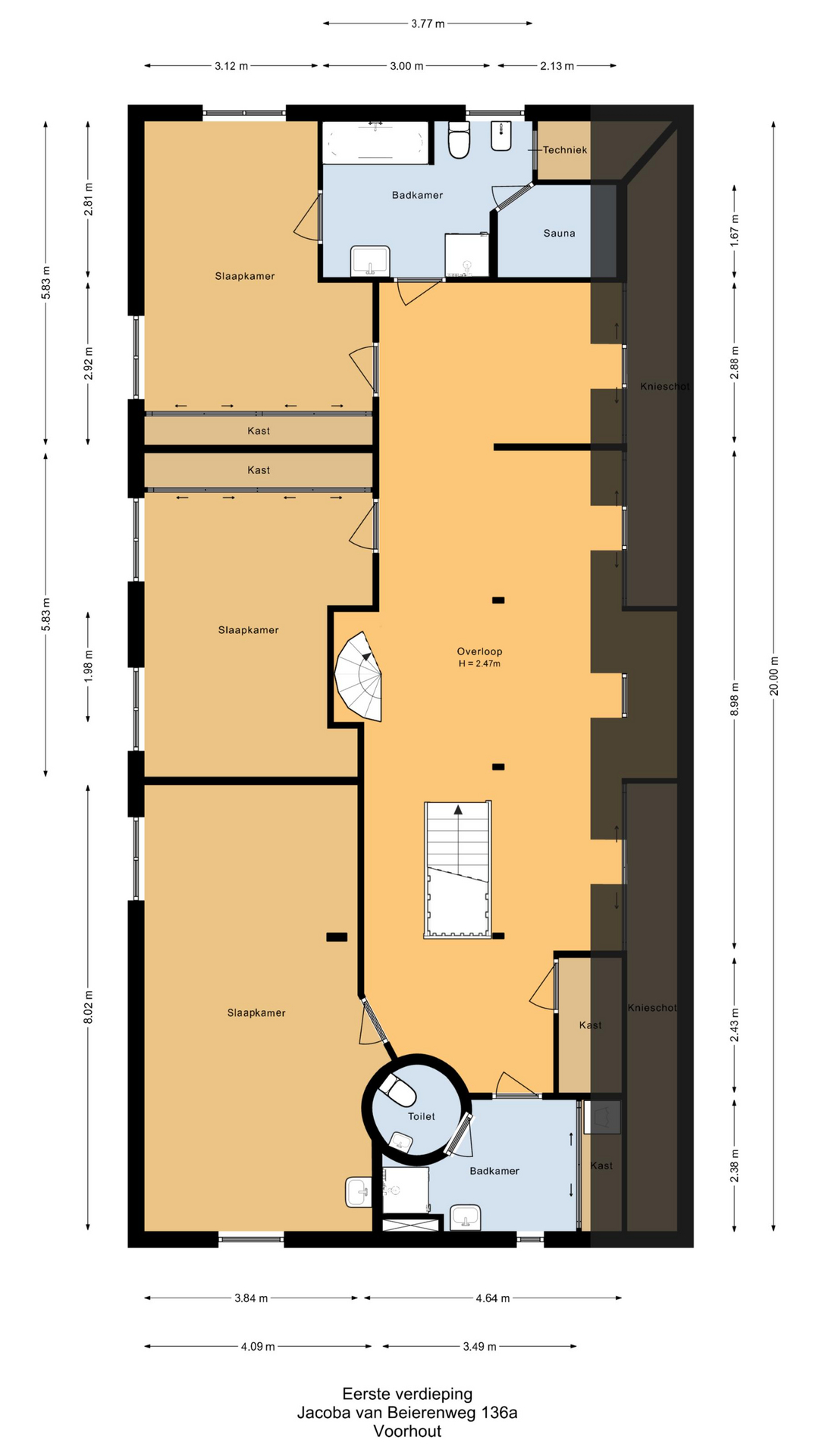
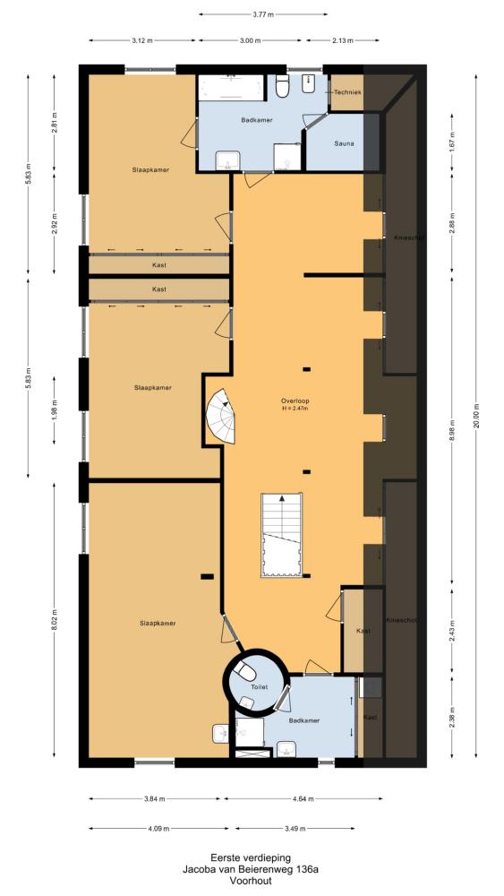
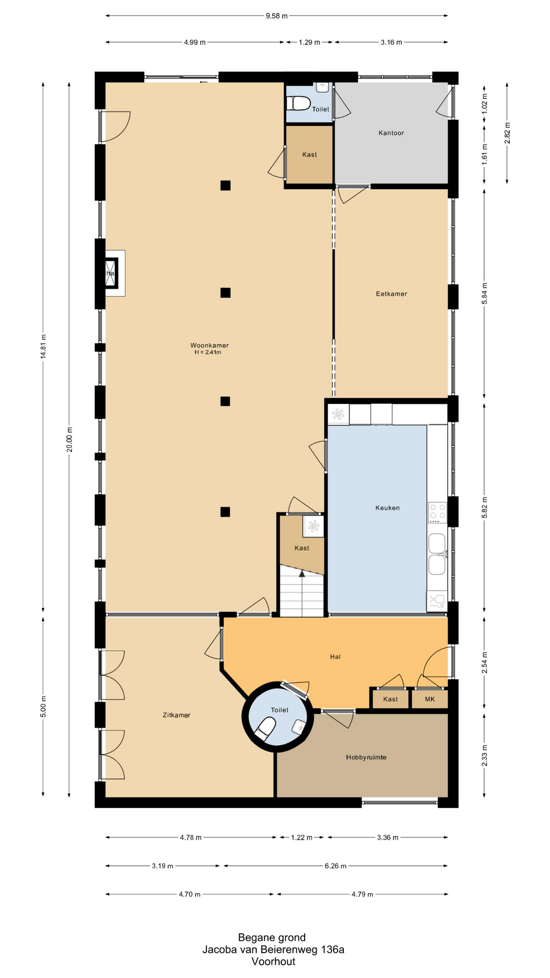
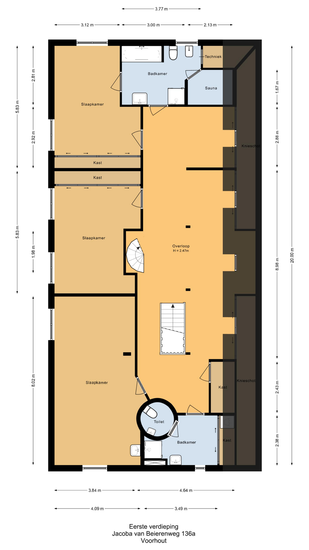
Планы этажей

Wilbrink & v.d. Vlugt Makelaars

Heereweg 231
2161 BG Lisse

info@wilbrinkvandervlugt.nl
+31 252 41 90 49

www.onsaanbod.nl

Информация / Запрос на просмотр

Rick Broekhof profile image
Rick Broekhof
Real estate agent